Finding The Chapel
Kino Grave Discovery
Page 2

2 Kilometers (1.2 Miles) of Trenches
Excavated to Find Father Kino

 

 

To Go To Kino Grave Discovery Site History (page1), click
Grave Discovery Site History Page

 

 

To Go Kino Grave Discovery Olvera Account (page 3), click
Grave Discovery Olvera Account Page

To Go To Magdalena de Kino - Trails Ends, click
Magdalena de Kino - Trails End Page

 

 

To download the summary of the "Finding Father Kino" account written by Dr. Bernard L. Fontana in 1996, Click Finding Father Kino Fontana.

 

 

To download "Archaeology Notes on the Discovery of Father Eusebio Kino" written by Dr. William W. Wasley in 1966, Click Archaeology Notes on Discovery of Kino by Wasley

 

 

 

Major Page Sections Links

 

 

 

Website Page Links

Basic Archeological Problem: Finding The Kino Chapel 
[P]roject leader Prof. Wigberto Jimenez Moreno to comment as follows at the end of the project: Our search had been "like looking for a needle in a haystack, but first we had to find the haystack!" There was little hope of finding or identifying Father Kino unless we could first find and positively identify the chapel in which Kino had been buried, This, in a nut shell, was our |1| basic archeological problem: it cannot be more simply stated. Yet at times the solution appeared elusive if not impossible.

William W. Wasley
Archaeology Notes on the Discovery of Father Eusebio Kino 1966

To download "Archaeology Notes on the Discovery of Father Eusebio Kino" written by Dr. William W. Wasley in 1966, Click Archaeology Notes on Discovery of Kino by Wasley

Wasley's Notes are can be read on this page. They are set out below.

Kino Project Team Members

The team that discovered Kino remains coordinated the search in distant archives with archaeological excavations mainly in the town of Magdalena, Sonora. The team included Professor Wiberto Jimenez Moreno, Head of Historical Research of I.N.A.H., ethnohistorian and Kino discovery project leader;  Professor Jorge Olvera H., art historian and ethnohistorian, I.N.A.H.; Professor Arturo Romano Pacheco, Head of the Department of Physical Anthropology, I.N.A.H., physical anthropologist and archaeologist; Dr. William W. Wasley, archaeologist, Arizona State Museum, the University of Arizona, Tucson; Rev. Kieran R. McCarty, O.P.M., Franciscan historian and pastor of the chain of Kino mission churches in the Altar River Valley. Afterwards he served as pastor at Mission San Xavier del Bac in Tucson; Rev. Cruz G. Acuña, historian, Archdiocese of Hermosillo; Professor Fernando Pesqueira, Director of the Sonora State Museum, Hermosillo, and Gabriel Sánchez de la Vega of Magdalena, local historian and public health officer; Conrado Gallegos, topographical engineer, General Office of Public Works of the State of Sonora; and Professor Jorge Angulo, archaeologist, I.N.A.H.

Editor Note: Jorge Olvera’s account is in a form of a reconstructed diary organized chronologically. The day entries are based on Olvera's diary and notes written during the Kino discovery project in addition to photographs. The day entries also include discussion of later topics that arose later in the Kino project to provide context. Olvera’s account also uses the 1966 “Archaeology Notes on the Discovery of Father Eusebio Kino" and other notes written by William W. Wasley.  Wasley’s Archaeology Notes can be viewed and downloaded from this website by clicking on Grave Discovery Chapel Page.  

The headline titles in bold font throughout Olvera’s excerpts are not Olvera’s but those of the editor. The addition of headline titles with their descriptions are intended to help the reader understand the principal evidence that led to the discovery of Father Kino’s grave and the identification of his skeletal remains. Most of the photographs and other visuals are set out before the text that they are used to illustrate.

 

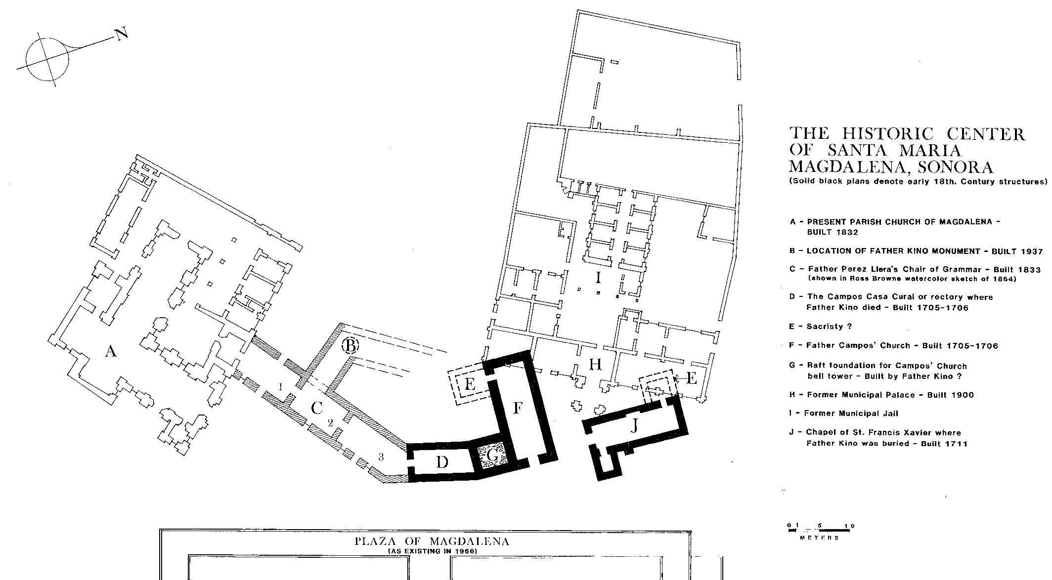
The Historic Center of Santa Maria Magdalena, Sonora

Solid Black Plans Denote Early 18th Century Structures
(A) Present Parish Church of Magdalena (1832). (B) Father Kino Monument (1937).
(C) Perez Llera's School of Grammar (1833). (D) Campos Casa Cural (1705-1706).  (E) Sacristy ? (F) Campos Church and its (G) Tower Raft Foundation (1705-1706).
(H) Former Palacio Municipal and its (I) Jail (1900).
(J) Kino Chapel of San Francisco Xavier (1711).
Date When Structure Completed in Parenthesis.

30 Meters (98 Feet) Is Between (A) Present Church (H) and Former Palacio Muncipal

Notes on Building Terminology Identified Above

Editor Note: The Kino Chapel is also called "La Capilla" and "Chapel of San Francisco Xavier." Kino was buried in the Chapel after he dedicated it in 1711. It was destroyed completely in the earthquake of 1887 (J). The Campos Church was started in 1705 and its destruction date is unknown but it was before the 1879 Pinart drawing (F). City Hall is also called "Palacio Muncipal" It was built 1910 and demolished to build the Kino National Mausoleum and the Kino Monument Plaza in 1970 (H). Present Magdalena Church is also called "Santa Maria Magdalena Church." It was built in 1832 and is the present parish church and is located in the Kino Monument Plaza (A). The building footprints shown in bold solid lines existed at the time of Kino's death. The first phase of the Kino Grave Discovery Project was during the months of August and September 1965. The last phase was from April and May 1966.

1967 Aerial View Of Magdalena After Kino Discovery - Figure 83

1967 aerial view looking west over Magdalena de Kino, Sonora after the discovery of Kino's grave site and before construction of the new plaza in 1970.

The letters mark locations: (A) Old Kino monument. (B) Magdalena Church. (C) Palacio Municipal (City Hall) with clock tower. (D) Vacant lot. (E) Jail. (F) Rio Magdalena. (G) White roofed structure over northwest segment of the Kino Chapel with Kino's remains. (H) White roofed structure over southeast segment of Kino Chapel with remains of Salvador de Noriega. (I) Railroad tracks of the Ferrocarril del Pacifico. Photographer Alexander Russell, Jr.  Entryway of (J) Magdalena Church notary office was part of the old arch that Olvera used as an architectural registration point for his Composite Sketch (Image 1). The location of Letter J is seen between Location B and the words "Calle Francisco I. Madero."

30 Meters (98 Feet) Is the distance between (B) Magdalena Church (H) and Former Palacio Muncipal.

Center of Historic Magdalena Before Kino Project Excavations Began in 1965

Archaeological Notes On The  Discovery Of Father Eusebio Francisco Kino
By William W. Wasley

Archeological Notes On The Discovery Of
Father Eusebio Francisco Kino 1966
by
William W. Wasley

In the initial stages of our search in Magdalena Sonora, for the remains of Father Kino, we had only two leads on which to base our hopes: some meagre documentary evidence, a little of which eventually turned out to be misleading, and what little we knew about the architecture of the colonial period in the Pimeria Alta of northern Sonora and southern Arizona. In the final months and weeks of our investigations the relevant documentary evidence was to increase nearly tenfold and provided the archaeologists with valid interpretations of the structures they were uncovering. Long before this point was reached, however, the archaeologists had uncovered dozens of foundations beneath the streets of Magdalena, adjacent to the present church, and even in the jail yard.

At first these remnants of earlier structures served only to confuse the basic archaeological problem and prompted project leader Prof. Wigberto Jimenez Moreno to comment as follows at the end of the project: Our search had been "like looking for a needle in a haystack, but first we had to find the haystack!" There was little hope of finding or identifying Father Kino unless we could first find and positively identify the chapel in which Kino had been buried, This, in a nut shell, was our |Wasley 1| basic archeological problem: it cannot be more simply stated. Yet at times the solution appeared elusive if not impossible.

As an example, it had occurred to us that the chapel of San Francisco Javier might have been built upon slightly higher ground than that of the surrounding area, and that in the late 1800' s when some of the modern structures area built in the vicinity of the present plaza, this area might have been levelled, leaving no trace at all even of the foundations of the earlier chapel. This unwelcome thought continued to haunt us from time to time.

Nevertheless, an intensive search was mandatory, and we needed to undertake as much excavation as possible in the general area, in order to eliminate as much ground and as many structures as possible. This approach to the problem, the step by step elimination in order to zero in on the true location of the chapel, was dictated by Prof. Jimenez Moreno. It was an excellent idea. It involved more time and expense, but it paid off in dividends. Most of the other foundations that we encountered -- if not all of them -- could be identified historically with Franciscan and post-Franciscan structures. At least we were eliminating, on the one hand, and learning more and more about post-Jesuit period foundations and architecture on the other.

For instance, there was a strong feeling among some of the local people that the chapel in Calle Pesqueira, several hundred meters southwest of the present church, was indeed the |Wasley 2| chapel of San Francisco Javier in which Kino had been buried. Excavations underneath the floor revealed three previous excavations -- where someone had searched before -- and nothing else except a potpourri of artifacts, all post-Kino in time, including a bicycle chain and a cigarette lighter, These 1 saw in 1963 during the Lion's Club excavations here, and on the basis of what I saw then, everything was too late in time to have belonged to the Kino period. Virtually everything was 19th century or later. Two years later Prof. Jorge Olvera examined this site and on the basis of the architectural style alone was able to determine that the structure belonged to the Franciscan period. A few months later Father Kieran McCarty came across a document from the archives of the Franciscan Colegio de Santa Cruz de Queretaro stating that this chapel had in fact been constructed by the Franciscan Father Ruiz in 1815. Clearly, this could not have been the chapel in which Kino was buried.

One thing that I was becoming more and more convinced about as the excavations progressed was that in the Pimeria Alta there was a basic difference between the foundations of major structures of the Franciscan period and later as opposed to those of the earlier Jesuit period. Throughout the colonial period foundations consisted of boulders set in mortar in a shallow trench. However, the mortars used were usually very different in the Jesuit period in the later periods. During the Franciscan period the boulder foundations were set in a lime mortar, which to this day still remains quite |Wasley 3| hard. The Jesuit boulder foundations of the Kino period, as I had earlier observed at the mission ruins of Los Santos Angeles de Remedios, were set in a very clayey mortar (soquete) -- much more clay-like than the mortar used in cementing unfired adobes or than the consistency of the adobes themselves. This feature had also been observed in the later Jesuit mission structure of Guevavi in southern Arizona. Throughout the colonial period, however, some boulder foundations were set in a regular adobe mortar, although the Jesuits never used a lime mortar in Pimeria Alta and the Franciscans apparently did not use the soquete mortar.

This overlap in the use of adobe mortar foundation construction sometimes does not pose a serious problem in identification because in wall construction the Franciscans frequently used fired brick, and in Pimeria Alta, at least, the Jesuits apparently never did. Even if only adobe foundations are found in place, the presence of fired brick in the surrounding debris or incorporated in the foundations themselves is usually a sure sign that the construction, or at least the reconstruction of a structure, was made during the Franciscan period. This observation tends to hold true as a rule, except in places like Magdalena where there is so much mixture of fill, artifacts, and building materials over the central portion of the town that it would not be impossible to find fired brick fragments in the fill and vicinity of the chapel of San Francisco Javier even if it had never been reconstructed or repaired with fired brick by the Franciscans. In fact, exactly this did happen during our search, and this is why so much evidence was needed |Wasley 4| before we could be really sure what structures we were dealing with.

On May 13, 1966, we begun to encounter in our excavations a new set of foundations. It soon became apparent that these were of the boulder and clay mortar (soquete) type which I felt belonged to the early Jesuit period. I suggested that several of us take a trip to Remedios to verify that this was the same type of foundation as used by Father Kino in the construction of that church. Prof, Jimenez Moreno agreed to this, and on May 15th, Prof. Arturo Romano, Prof. Jorge Olvera, and I along with two laborers went to Remedios.

The mission of Los Santos Angeles de Remedios about 45 Kms. by road northeast of Magdalena, was founded by Father Kino. He began construction of the church in 1695 and dedicated it in January, 1704. It is the only church built by Father Kino, to my knowledge, that was not subsequently rebuilt or built upon. Secondly, I also knew that one end of this church extends over edge of the mesa on which it was built, so that with a minimum of excavation it would be possible to clear away enough dirt in an hour or two to expose enough of the foundation to be able to examine the precise nature of its construction. What we found was exactly the same type of construction, river boulders set in soquete mortar, that we had just uncovered in Magdalena, Back we went, only to find that in our absence Prof. Jimenez Moreno had found a second set of similar foundations that same day. While we were not exactly elated with this news at first, it soon became |Wasley 5| apparent that we were probably faced with trying to determine which of these two structures (if either) was the finished chapel in which Father Kino had been buried and which (if the other) was the church that Father Augustin Campos had already started at the time of Kino's death, This was the real challenge, for finally we felt certain that we were working with Kino period structures. We felt that we might be getting close to the solution, but we still needed proof as to which structure, if either, was the chapel dedicated to San Francisco Javier in which Father Kino had been buried.

While all of this prowling around for walls and foundations had been going on in the dusty streets of Magdalena, the historical researchers had been prowling through dusty archives searching for -- and finding -- more documentary evidence that should help provide a positive identification of the chapel. Their data began pouring in to us almost faster than we could dig.

The amazing finds were these:

1) The historical researchers found documentary evidence that the Jesuit missionary Father Gaspar Stiger, a German, had buried a Salvador de Noriega, in life employed by Lorenzo Velasco, just outside the door of the chapel of San Francisco Javier in Santa Magdalena, in August of 1739. The archaeological crew uncovered a burial in just such a spot with reference to one of the Jesuit period structures.

2) The historical researchers revealed that in 1828 |Wasley 6| the inspector Fernando Grande had stated -- for the first time in all of the historical records that we know about -- that the chapel faced to the south ("al medio dia" ) and that it had a small tower. It was not long after this that the archaeologists were able to determine from the foundations that this same structure did face to the south. It was much later, however, at the very end of the project and actually during the process of winding everything up that Prof. Jorge Olvera finally found the foundations of the tower.

3) In this same document the historians were able to ascertain that the image of San Francisco Javier had been moved from the altar to about the midpoint of the nave of the chapel by 1828. The reason for this, we have to assume, was that the Fiesta de San Francisco Javier, celebrated annually and currently reaching an influx into Magdalena every year of an additional 10,000 people, had reached impossible proportions 140 years earlier in the tiny chapel, and the image had been moved to provide better traffic circulation through the chapel. In 1837, the historical documents reveal, an elderly man of 90 years died and was buried inside the chapel in front of the niche of San Francisco Javier. The archaeologists found, at one side of the structure, about half way down the length of it, the burial of an old man with his feet towards the far side of the nave. The historical documents would seem to provide the identity of the burial, while the position of the burial would indicate that the image of San Francisco Javier, at the time that it was moved from the altar, had been |Wasley 7| installed on the west side of the nave.

4) The historical researchers found documentation to the effect that Father Perez Llera was about to build a buttress to support one of the walls of the chapel. The buttress must have been built, because we found one outside the east side of the chapel. It was the only one we encountered.

There were a few other points of historical evidence, minor in terms of what we really needed, to indicate that this structure was indeed the chapel of San Francisco Javier in which Father Kino was buried. One of these was ruins of the sketch of the chapel made by the historical buff, Alfonse Pinart, in 1879.

In terms of the archaeological-historical data, we had still to find Father Kino's remains flanked on either side by the re-interments of Father Gonzalez on Kino's right and Father Iturmendi on his left, with Kino on the gospel side with his head towards the altar. Actually, by this time, we had found the primary burial (that of Father Kino) with its head towards the altar, and we had found the two secondary burials. I still wanted to determine that Father Kino was in fact on the gospel side of the chapel. In order to do this, and in order to tie up several other loose points, it was necessary to continue excavations in order to find the west wall of the chapel. This endeavor was only moderately successful. We did find enough of the west wall to be able to determine that the primary burial, that of a priest on the basis of its orientation  was also buried on the gospel side |Wasley 8| of the chapel as Kino had been. However, the fragmentary condition of this wall allowed us to accomplish little else beyond determining the width of the chapel and the fact that a later burial had been intruded into the foundation. We were not able to find the west side of the door.

Although the archaeological evidence, supported to a considerable extent by historical documentation, has conclusively demonstrated that the remains of Father Eusebio Francisco Kino have been found, neither archaeology nor history by themselves could have established this fact. On the other hand, the physical evidence of the burial itself (including orientation, the coffin, and the crucifix on the left clavicle) and the physical anthropological characteristics as interpreted as the skeleton by Prof. Arturo Romano would alone have established the fact that this was Father Kino. In other words, the nature of the burial establishes it as belonging to a priest or missionary, while the physical characteristics of the skeleton establishes it as belonging to a European of Alpine stock. As far as I have been able to determine no other priest of European ancestry and Alpine stock was ever buried in Magdalena!

Is there anything else from an archaeological point of view that should be done in the future to clarify more of the segment of history that deals with the final resting place of Father Kino? There is. When the present Ayuntamiento structure is razed to permit the construction of an appropriate monument to Father Kino, there is a good chance of finding through |Wasley 9| archaeological exploration onFe or more of these four things: 1) more of the west wall of the chapel; 2) the room(s) (one or two) that comprised Father Campos' quarters in which Father Kino died; 3 ) the quarters that Father Font used in 1776; and 4) a possible sacristy adjunct of the chapel.

William W. Wasley
Archeological Notes On The Discovery Of Father Eusebio Francisco Kino 1966

To download "Archaeology Notes on the Discovery of Father Eusebio Kino" written by Dr. William W. Wasley in 1966, Click Archaeology Notes on Discovery of Kino by Wasley

Discovery Account from Excerpts of the 1998 Book by Jorge Olvera H.
"Finding Father Kino: The Discovery of the Remains of Father Eusebio Francisco Kino, S.J. 1965 -1966"

Notes on Olvera Excerpts, Titles in Bold Font

Editor Note: Jorge Olvera’s account is in a form of a reconstructed diary organized chronologically. The day entries are based on Olvera's diary and notes written during the Kino discovery project in addition to photographs. The day entries also include discussion of later topics that arose later in the Kino project to provide context. Olvera’s account also uses the 1966 “Archaeology Notes on the Discovery of Father Eusebio Kino" and other notes written by William W. Wasley.  Wasley’s Archaeology Notes can be viewed and downloaded from this website by clicking on Grave Discovery Chapel Page.  

The headline titles in bold font throughout Olvera’s excerpts are not Olvera’s but those of the editor. The addition of headline titles with their descriptions are intended to help the reader understand the principal evidence that led to the discovery of Father Kino’s grave and the identification of his skeletal remains. Most of the photographs and other visuals are set out before the text that they are used to illustrate.

Most of the Olvera day entries on this page is from the excavation season of April and May 1996. To view the day entries during the earlier excavation season of August and September 1995, click on Grave Discovery Olvera Account Page. Olvera Account Page  includes entries from the excavation season of April and May 1996 that are also on this page. The Olvera Account Page does have some different photographs in addition to extra discussion found at the end of the page.    

Beginning of Jorge Olvera's Discovery Account
Finding Father Kino Excerpts

Kino Burial Records - Stolen by Pinart & Microfiche Donated by Dobyns
August 7, 1965 Saturday
Magdalena, Sonora

The Record of Father Kino's Burial: The original burial register containing the notice of death and burial of Father Kino no longer exists in the parish archives of Magdalena. Thanks to Alphonse Pinart's theft, it has come to rest instead - along with other Sonoran church registers - in the Bancroft Library on the campus of the University of California in Berkeley. Many years ago, and at his own expense, American anthropologist and historian Dr. Henry F. Dobyns had photostatic copies made of the original records in the Bancroft Library. He presented these to the Reverend Santos Saenz, pastor of the Magdalena parish. |41|

Kino Burial Record - Copy of Original

It is from one of these excellent photographic copies that I now transcribe the exact wording of the death notice of Father Kino from the Magdalena burial register. |41| I start with the original Spanish script before continuing with the precise English translation:

The correct English version is as follows:

The Year 1711 On the fifteenth of March just before midnight, having received the Holy Sacraments, Father Eusebio Francisco Kino died with great peace and edification in this house and Pueblo of Santa Maria Magdalena at the age of seventy years [sic], having been for nearly twenty-four years missionary of Nuestra Señora de los Dolores, which he himself founded. He toiled without rest in continuous peregrinations and in the reduction and settlement of all this Pimeria. He discovered the Casa Grande, the Gila and Colorado rivers; the Cocomaricopa and Suma nations and the Quicamaspa of the Island, and now resting in the Lord, he is buried in a coffin in this chapel of San Francisco Xavier on the Gospel side where fall the second and third ashlars. He was a German by nationality and of the province to which Bavaria belongs, and before he entered the |42| Pimería he had been missionary and cosmographer in California in the time of Admiral Don Ysidro de Otondo = Agustin de Campos, S.J, [rubric] |43|

xx

Location Sketch of 1965 Archaeological Excavations Figure 10
The Historic Center of Santa Maria Magdalena, Sonora
Jorge Olvera

Wasley Field Notes Excerpts From August 21, 1965
Kino Discovery Project Status At End of First Field Season - 1965

September 25, 1965 Saturday
Magdalena, Sonora
Cocóspera Mission Ruins, Sonora

It is worthwhile here to include extensive segments for Dr. Wasley’s field notes. They offer the reader a sense of immediacy as well as some understanding of the difficulties under which the work was being carried out. They are also and important record that should preserve in print. ... |140| ... 8/21/65 [Figure 32] .... |141]  ...
“NOTE.
1.  I am planning to return to Tucson tomorrow, because a) the workmen are not wanting to work, b.) Arq. Jorge Olvera therefore is probably going to go to Tumacacori to interview Judy England, ...   |142| 

“ 6. Since I will be gone tomorrow for about 2 weeks, I have given some, and I hope to give more, directions before I leave of what avenues ought to be approached. Let me point out, however, that this is no easy matter: we have about as many different sets of previous foundations as there are theories (and there are a great many here in Magdalena) as to where the old church was and where the old chapel (in which Kino was buried) ought to be. We have, just for instance, found foundations in every single trench except Trench #3. These are widely separated, in some cases, and in any event we are certainly dealing with more structures than the meager historical record has revealed. The problem of sorting these out, as to period as well as to structure, is almost unbelievably difficult. We lack for the 19th century almost every detail except that the modern church was constructed and finished by 1832, that the town was visited and sketched by Bartlett, J. Ross Browne, and Pinart, and that [Henry Alexander] Crabb's Filibusters were here [sic, They got no farther east than Caborca when all but a boy were killed in 1857]. Beyond that, we know only that the railroad came thru in 1882, and that the present Casa Municipal was constructed ca. 1921. It is the information for the 19th century, basically, that we lack. ”

“ 9/17/65 Left Tucson 8:15 A.M., arrived Magdalena 1:00 P.M. Went to La Fuente for lunch, and found that Mrs. Drum was back in town, doing the cooking there. She knows a man here in town over 100 yrs. of age whom she thinks may know something about the location of the old church. Quien sabe? ”

I found some other notes written by Dr. Wasley on the Kino project that perfectly summarize all that was done before we went into the third and final stages [April 19, 1966 - June 18, 1966] of investigations that lead us to the discover of Father Kino’s remains. There were in an unpublished article of his titled, |143| “Historic Archaeology in the Missions of Pimeria Alta.—Interim Report, November 1, 1965, on the Magdalena Project.

This essay explains the project's background and includes a summary of earlier attempts by both Mexican and American researchers to find Kino's remains. It also tells about people involved in more recent investigations, including himself, Father Charles W. Polzer, S.J., and James E. Ayres, all of whom served mainly as advisers to those, such as members of the Lions Club of Magdalena, who had already been digging at several sites. For the beginning of January, 1965 he mentions our arrival in Tucson to start what he calls the Current Project Report:

“On August 16, 1965, Professors [Wigberto] Jimenez Moreno, Jorge Olvera, and Arturo Romano arrived in Tucson. As official representatives of the Instituto Nacional de Antropologia e Historia, they had been appointed as a committee, by Agustin Yanez, Minister of Education, at the request of President Diaz Ordaz of Mexico, to conduct scientific excavations in Magdalena in order to find the remains of Father Kino. They were in Tucson (1) to continue archival research which they had begun in Mexico City and had furthered in Hermosillo and Magdalena, and (2) to request of the University of Arizona that Wasley be permitted to accompany them back to Magdalena to assist in the excavations as a collaborator, since they felt that they had no one at the Instituto with experience in the historic archaeology of northwestern Mexico. Wasley went to Magdalena on August 18 and stayed through the 21st and part of the 22nd, during which time excavations were conducted in front of the present church and to the north of the present church. Labor was provided by the state government of Sonora. Prof. Jorge Olvera was left in charge of the work, as the other committee members had to return to Mexico City.

The archaeological problem is threefold: (1) to discover and identify the foundation outline of the church built by Father Campos and the chapel of San Francisco Xavier in which Kino was buried, (2) to determine whether these were two distinct structures or a single joined structure (it has not been possible to ascertain this from the documentary sources), and (3) then attempt to locate and, identify Father Kino's remains in the proper area. The Mexican government officials in Mexico City apparently realize that the ultimate goal may be unattainable—which is a very realistic view—and yet they feel the |144| effort ought to be made, scientifically and methodically.

The approach to the problem, as envisioned by the committee from the Instituto, is to eliminate and narrow down possible locations, by adequate excavation wherever necessary, and by documentary evidence wherever possible until the chapel structure is located and identified.

This appears to be a very logical approach, particularly in view of the large number of foundations encountered by the 24 trenches dug during this phase of the operation, none of which can be related so far to a church structure. Before these excavations were backfilled, they were mapped in detail by an architectural draftsman sent from Hermosillo by Governor Encinas”.  

On August 26 Prof. Olvera had to return to Mexico City to make a progress report, to raise additional funds for the project, and to continue archival research.

One basis used for deciding where to dig trenches was the series of sketches showing the old church: Bartlett in 1851, J. Ross Browne in 1864, and Pinart in 1879, all of which show the old church in relation to the present church. [6] Yet it is virtually impossible to reconcile what is shown in any one of these sketches with positions shown in either of the other two. Unfortunately, the earliest photograph so far available, taken by George Wharton James about 1890, shows only the present church and not enough of the area around it, [7] but by this time the ruins of the old church had been leveled anyway.

One encouraging aspect of the series of trenches is that a considerable cultural depth below street level was evidenced in most of the trenches. Therefore, the foundations and at least the lowest portions of the walls of the Jesuit church and chapel could still be extant. On September 17, 1965, Wasley rejoined Prof. Olvera in |145| in Magdalena. The Ministry of Tourism in Mexico City had provided $15,000 pesos to continue the current project .... Excavations were not renewed in Magdalena, because the town had already started to make preparations for the annual fiesta of San Francisco Xavier. ....

Instead, two days [21 and 22] were spent at the ruins of the mission of Cocóspera , taking detailed photographs and studying features of architectural construction ... “
|146|

Footnote [6] With the exception of Pinart's sketch, they show the old Campos church hi relation to the present church. I later discovered by superimposing a tracing of Pinart’s sketch on an old photograph taken from the same angle that it actually shows the San Francisco Xavier chapel rather than the Campos church. |145|

Juan Bautista de Anza Letter About Kino Chapel 1770
The Last Excavation in Search for Father Kino's Remains: 1966
Chapter 12 ....

I actually stayed in Magdalena until the 30th of September of 1965 ... until I was told to stop because in a couple of days the annual fiesta of San Francisco Xaver was to start. The Mayor had given orders to backfill our excavations. |147|

I formally resumed my work on the 13th of April of 1966, but I had continued to do intensive research home in Mexico City. Mainly in the National Library, Department of Manuscripts.  … I found one … potentially useful for our project. Its title is … (“Complaints of the natives of S. Ygnacio, La Magdalena and Himuris against the Father Missionary’)  … It reads, in part, as follows: “Se cierra la Capilla de San Fco. Xavier: 1770”. (“The Chapel of St. Francis Xavier is closed: 1770”).
“… they requested by God and the King ... that if your Lordship doesn't want their loss and total ruin he should remove the present Father missionary ... because in both pueblos [San Ignacio and Sta. Magdalena] only six or eight masses have been said to them in two years and they are not taught to pray, and that in Santa Magdalena, he has deprived them of the visible veneration of their saint, Francisco Xavier, closing his chapel.” |148| [Letter from Juan Bautista de Anza to Colonel Don Juan de Pineda, Governor and Captain General of Sonora, January 18, 1770]” |148|

Thus we know from this document that the chapel of San Francisco Xavier in Magdalena was in service in 1770, and that this most venerated saint was being worship in it. … |149|

Research Trip to Tucson
Mission San Xavier del Bac, Arizona Historical Society, University of Arizona
Tucson Is Located 120 Miles North of Magdalena 

More Tucson Research: Campos Church Walls In State of Collapse - 1736

April 25, 1966 Monday
San Xavier del Bac, Arizona

We arrived at San Xavier del Bac in the evening, on the same day, Monday, April 25, and because it was too late to look at the mission church, we went directly to the library and archives and stared to work with documents. Those pertaining to the Sonoran mission were quickly located, thanks to Father McCarty’s expert organization of the files. We pored over many documents, mainly Franciscan, but also Jesuit, as well as over bibliographical notes, etc. Each of took a bundle of papers and start to work on them. ... |156|

Dr. Wasley’s notes about our visit so San Xavier del Bac and Tucson she futher light on events of April 26:

“April 26, 1966—Tucson—W. W. Wasley.
Jorge Olvera called about 9:00 A.M. to say that he, Jimenez Moreno, Sanchez de la Vega, Don Fernando Pesqueira, Sr. Montano, and Father Kieran McCarty were in Tucson. Jimenez Moreno appeared about 10.30 A.M. in Ray Thompson's office [Thompson was Director of the Arizona State Museum], to request that I be allowed to accompany them to Magdalena to resume work on the Kino project—this afternoon if possible. Not possible. I will go down with Father Kieran tomorrow afternoon and meet them there. Was with the group from about 11:30 until 6:00 P.M. They had been conducting research at San Xavier and the Pioneers' Historical Society since the night before. ... :”|157| ...

The growth of Magdalena is indicated by the fact that about 1799 Magdalena ceased to be the visita, or mission visiting station, of San Ignacio, and became the headquarters church instead.

 A document dated 1736 indicates that the walls of the parish church, that built by Father Campos under Kino's supervision, were in a state of collapse. In 1746 it was being called "the old church," even though there was no other to replace it except for Kino's San Xavier chapel, and in 1748 there was a burial beneath the choir loft of. the "old" church. |159|

Kino Chapel (J) & Campos Church (F) Align With Cardinal Compass Points
As Required by Royal Ordinance
The Compass Direction of North Is In Upper Left Corner 

(A) Present Parish Church of Magdalena (1832). (B )Father Kino Monument (1937).
(C) Perez Llera's School of Grammar (1833). (D) Campos Casa Cural (1705-1706).  (E) Sacristy ?. (F) Campos Church (1705-1706) (G) Raft Campos Tower Foundation.
(H) Former Palacio Municipal (1900). (I) Former Municipal Jail.
(J) Kino Chapel of San Francisco Xavier (1711).
Date When Structure Completed in Parenthesis.
30 Meters (98 Feet) Is Between (A) Present Church (H) and Former Palacio Muncipal

Traza: Kino Chapel And Campos Church Align With Cardinal Compass Points 

May 1, 1966 Sunday
Magdalena, Sonora ...

During the afternoon we had another conference, this time with Professor Jiménez Moreno, Father McCarty, Dr. Wasley, and me, to discuss the masonry foundations we found in front of the facade of the present church. These footings appeared to start at the sidewalk in front of the facade of the church and seemed to end near the southwest |168| west column or pillar of the clock tower of the Palacio Municipal.

Father McCarty, who had been investigating a series of documents from the archives of the Colegio de la Santa Cruz de Queretaro, had made a very timely discovery. He had found a document that suggested these foundations could be those for a structure which the Franciscan, Jose Maria Perez Llera, builder of the present church, had erected for a school of higher learning in the spring of 1833. This was months after he had finished the church now in use, one blessed on December 3, 1832.

Perez Llera tells us about the school in his own words:
 “ . . . on this occasion I made an offer to the governor that should I happen to get some religious [priests, brothers, or nuns], I would try to establish a chair of [Latin and Greek] Grammar so I could start to train some young people, but I would need some support to this effect. I added three rooms to the house of Magdalena. “

Father McCarty said he thought these foundations did not start from the point situated in front of the facade of the present church, near the north pilaster, where I had begun to dig for them during the first season of excavations in 1965. On the contrary, he suggested they began on the opposite side and near where we were then standing, more-or-less in front of the clock tower of the Palacio Municipal (see Fig. 36). These foundations, on reaching the east side of the Kino Monument, did not continue in a straight line, but made a sharp turn to the right in a direction parallel to the “casa cural” that had been built by Father Juan B. Comellas in the 1870s and was torn down in the mid 1960s. Had they continued in a straight line from the clock tower, as Father McCarty very reasonably observed, their front wall would have ended in front of the main entrance of the church, blocking it. As Father McCarty reminded us, by 1832 the church was already in place.

This document indicating that Father Perez Llera was building a school in the spring of 1833, and that for that purpose he had added ". . . three rooms to the house of Magdalena. . . ," was discovered by Father McCarty at a very opportune time. It was just then that our archaeological excavations had uncovered these enigmatic stone-masonry foundations about which we knew only that they were Franciscan rather than Jesuit in origin.

“Traza” is a design, a draft, an invention, a plan. It is |169| applied to the original layout of a settlement in conformity with its topographic setting and general environment. ... |168| ... Beginning in the 16th century, all settlements, towns and cities in Mexico were planned by Spaniards according to Roman city planning principals” [as incorporated into the Royal Ordinances] ...

When Kino found the Mission of Santa María Magdalena, he was not doing it in a haphazard or idiosyncratic manner. Hew was obeying the Royal Ordinances of Phillip II ... |170| ...

At Magdalena, town planning was not really up to Hippodamian standards, but as a careful study of "traza" reveals, it nevertheless followed the Roman principals of town planning that were well understood by Kino. ...

How did Father Kino choose the site for the establishment of Mission of Santa María Magdalena? He found this mission in 1687 when he first entered the Pimería Alta, accompanied by his superior, Father Visitor Manuel González. Even that he was in the company |172| of the Father Visitor was in compliance with Ordinance Number 7: “.. . these [discoverers] shall go in pairs so they can render mutual aid to one another." . . .

In the choice of sites for settlement, Ordinance Number 40 recommended: "Very high places shall not be chosen, as they are disturbed by the winds and are difficult of access. Choose intermediate sites, provided with free breezes, especially from the north and south. And if it should be next to a mountain range, it should be seen that this will be on its east side or to the west. If for any particular reason a high place should be built, it should be seen that there is no fog. And if a site should be founded and built on a riverside, see that it is laid out on the east side."

Kino seems to have followed these instructions very closely when he founded Magdalena. He chose the east side of the river and situated Magdalena with the sierras flanking it on the east and west. ... is work as a planner is just beginning to be understood, and thanks in large measure to our research begun during our efforts to locate his venerable remains. ... his work as a planner is just beginning to be understood, and thanks in large measure to our research begun during our efforts to locate his venerable remains.

When Kino laid out the settlement of the Mission of Santa María Magdalena, the embryo of the future city, he may not actually have traced the central “plaza” (what in Roman times would have been the forum). Nevertheless, he had it in mind when he sited the first two and most important buildings of that time: the primitive mission church, begun 1705 (later called the Campos church, because Father Campos was its principal builder), and the chapel of San Francisco Xavier, which he also planned but which Father Campos finished and Kino dedicated in 1711.

These two pillars of the Mission of Santa Maria Magdalena, the first two constructions, were laid out along axis, the cardo [north-south] and decumanus [east-west], that generated the beginning of a settlement destined eventually become a city aligned in terms of Roman planning principles. Looking carefully at the map of Magdalena, one can see that the Chapel of Saint Francis Xavier was built perpendicular to the nave of the Campos church and is oriented exactly north-south, where as the Campos |173| church is orientated exactly east-west. It is known that in addition to his other talents, Father Kino was a trained cartographer (see Burrus 1965). It is more than likely that the man known to have brought an astrolabe with him to the Pimeria Alta used a compass for these operations.

In the positioning of these two buildings lies the generating axis for the growth of the present city of Magdalena and its expansion north‑south along the river and east‑west on either side of it (with most extension to the east where it is not blocked by a steep hill). If the Campos church and the San Xavier chapel had been left “in situ” and their outlines fully preserved, one would immediately see that the facade of the Campos church and the nave of the chapel faced the later plaza. Also, our later excavations and the unearthing of the foundations of the Campos church and those of the chapel (see Fig. 37, contour map) revealed that the seeds of the first streets and avenues were already contained in the pod of Kino's plan.

One of the first streets to be traced lies in the space created between the facade of the chapel, which faced due south, and the north side of the nave of the Campos church. Immediately parallel to this small and narrow street which ran east west towards the river, there is now Calle Cucurpe, which runs precisely east west from the river towards a second and smaller plaza a block and a quarter from the ancient buildings and a block from the present main plaza. The next main avenue (only a block away from the main plaza) is Calle Obregón. Thanks to Kino, the entire present city of Magdalena is laid out in a chessboard pattern springing from the two axial streets of Roman urban planning: the cardo [north-south axial street] and the decumanus [east-west axial street].

The atrium of the mission church and chapel later became the main plaza, and had the old buildings survived, the plaza would have been directly in front of them. We can imagine the first huts and dwellings of the neophytes of Magdalena gathered as a fold in front and around the atrium, as in J. Ross Browne's rednition of Cocóspera in 1862 (see Fig. 28).

This initial settlement plan made by Kino and constructed by Father Agustin de Campos was not only the starting point for the future city, but it followed certain fortification principles recommended by the Royal Ordinances. One of those ordinances, Number 133, stated: "Arrange the buildings in such a way that the lodgings can enjoy the breezes of the south and the north, and at the same time function as fortresses. Each house will have its own "corrals" or stock yards.”

In the Kino plan for the settlement, the corrals were located behind the Campos church and the chapel, on the slope, was defended somewhat by the sharp drop in terrain towards the river. |174|

Now that we have located the exact place where the Campos church and the Campos priest's house stood, it is further possible to demonstrate how the facades of the Campos church and house, with the lateral facade of the chapel, formed a great defensive wall that in military terms is called a "curtain" (see Fig. 37, contour map). From the contour map one can discern that both the Campos church and the Chapel of San Francisco Xavier were built on the highest part of the site. Behind then was a slope and sharp drop in the terrain to the river. All these elements helped protect the mission.

1966 Magdalena Contour Map - Figure 37
Defensive Hill Top Location of Campos Church and Kino Chapel

Traza: Campos Church & Kino Chapel On Defensive Hill Top
Now that we have located the exact place where the Campos church and the Campos priest's house stood, it is further possible to demonstrate how the facades of the Campos church and house, with the lateral facade of the chapel, formed a great defensive wall that in military terms is called a "curtain" (see Fig. 37, contour map). From the contour map one can discern that both the Campos church and the Chapel of San Francisco Xavier were built on the highest part of the site. Behind then was a slope and sharp drop in the terrain to the river. All these elements helped protect the mission.

In 1864, J. Ross Browne (1974: 169, 171) described the topography of Magdalena perfectly: "The town is like all I have seen in Sonora, a parched-up confusion of adobe huts, scattered over the slope of a barren hill. . . ." According to our contour map, Magdalena was indeed laid over a hill as he says in his book. Also, in his watercolor sketch (Fig. 51), one can see the large facade of the Campos house— without a single window—abutted to the tower of the Campos church, both of them forming a "curtain" or defensive wall. One can also see in his sketch how the terrain drops abruptly behind the present church towards the river, as in the contour map.

If we add the lateral facade of the Saint Francis Xavier chapel, which aligns with these other facades, to these large surfaces and elevations, we have almost a continuous and sturdy barrier or rampart protecting the mission from the east side. It is protected from the west by a sharp drop in the natural terrain and by the river.

Magdalena 1864 - Figure 51
J. Ross Browne Drawing
Present Magdalena Church (left) and Campos Church (right)

Traza: Campos Church's Fortified Tower Staircase Like San Xavier del Bac
There may have been yet another defensive element in both in the Campos church and the chapel, a transverse clerestory window in the upper part of the sanctuary instead of windows in the naves. The latter would have been vulnerable to the attacks by Indians who were in the habit of burning structures that had doors or windows made of wood. This possibility was not considered when we were looking for the re- mains of Father Kino, but it is one I offer now. The early use of the clerestory window as an element of defense has been documented in Central Mexico, in Sombrerete, Zacatecas, by art conservator and historian Gloria Giffords, who discovered one in the Chapel of Guadalupe dating to the beginning of the 17th century, and by me, through archaeological research, in a 16th-century, chapel located in Leon, Guanajuato. Transverse clerestory windows can be traced to Muslim Spain, in Andalucia, perhaps to the 15th century and. before.

In the J. Ross Browne sketch of Magdalena (Fig. 51) one can see that the Campos church had a “terrado” roof (no dome is shown as in the present church). It could have had a high presbytery and a transverse clerestory window. Likewise with the chapel of Saint Francis |175| I kindled this thought, and associating it with the J. Ross Browne sketch of Magdalena, everything seemed to fall into place. In Browne's sketch there is a low building abutted to the tower. It is a long building with no openings. It is perforated only by four well-spaced roof drains or “canales,” as they are called in Arizona, that slant down from near the parapet of the roof. For several reasons, I think this building is the original priest's house of the Campos church. In the first place, the putative priest's house in Browne's sketch seems to be connected directly to the tower. An opening can be seen at the base of the bell tower on its south side, just above the roof of the house. As we know that Magdalena was routinely being attacked by hostile Indians, this well-protected access to the bell tower could have provided immediate refuge and defense for the missionary and his Indian neophytes. They could better defend themselves from up there. Another element of defense is the lack of openings in this building.  ...

Another element of defensive fortification in the Campos mission of Santa Maria Magdalena was the fortified staircase that led up to the ...  |176| second story of the bell tower, and which can be seen in Browne's sketch. It is identical to one that can be still be observed on the east side of the west tower of Mission San Xavier del Bac, in Tucson, Arizona. It is provided with a defensive parapet handrail built to protect the defenders from projectiles. Fortified staircases like these can still be seen in Spain in the Muslim-Spanish structures of Granada and elsewhere in Andalucia. They are built in such a way that the spring of the stairs is always indirect and built at a sharp right angle turn. This forces anyone attacking to make a sharp and awkward turn as he tries to ascend, and he can be more easily shot from the upper part of the staircase. This is a “mudéjar” architectural feature exported from Spain to the New World. These kinds of staircases are called “escaleras acodadas,” or "elbowed staircases."

For all these reasons I was inclined to think that the foundations in front of us, leading away from what seemed to be a cobblestone pavement, but which could instead be the foundation of the tower of the Campos church, could be those for the priest's house of the original Campos mission, and to which Fr. Perez Llera had added three more rooms.

But where was the chapel of Saint Francis Xavier in which Kino was buried? We still didn't know, but it could possibly be nearby.

If my hypothesis were correct, Kino and Campos, complying with the Royal Ordinances, had fortified the mission from the very beginning. Based on visits we had made to the majority of Kino mission sites, we had come to the conclusion that most of his missions had been built in places that were naturally fortified, such as on the edges of bluffs, cliffs, or ravines. Moreover, the design of his missions must have taken their defense into consideration. This finds corroboration in his diary when he writes of the need to fortify Cocóspera with turrets (Kino 1919: I: 274). The contour map we later had made for Magdalena indicated that the Campos church had also been built on the edge of a bluff.... |177|

Kino Chapel: "Like looking for a needle in a haystack, but first we had to find the haystack!"

May 2, 1966 Monday
Magdalena, Sonora

... among his [Dr. Wasley’s] papers in the archives of the Arizona State Museum Library is a brief manuscript about our project that constitutes an important historical record of our research. Quotations from it are in order here (Wasley 1966):

“In the initial stage of our search in Magdalena, Sonora, for the remains of Father Kino, we had only two leads on which to base our hopes: some meager documentary evidence, a little of which eventually turned out to be misleading, and what little we knew about the architecture of the colonial period in the Pimeria Alta of northern Sonora and southern Arizona. In the final months and weeks of our investigations the relevant documentary evidence was to increase nearly tenfold and provided the archaeologists with valid interpretations of the structures they were uncovering. Long before this point was reached, however, the archaeologists had uncovered dozens of foundations beneath the streets of Magdalena, adjacent to the present church, and even in the jail yard.

At first these remnants of earlier structures served only to confuse the basic archaeological problems and prompted project |178| leader Prof. Wigberto Jimenez Moreno to comment as follows at the end of the project: Our search had been "like looking for a needle in a haystack, but first we had to find the haystack!" There was little hope of finding or identifying Father Kino unless we could first find and positively identify the chapel in which Kino had been buried. This, in a nutshell, was our basic archaeological problem: it cannot be more simply stated. Yet at times the solution appeared elusive if not impossible.”

While I was engaged in trying to interpret these foundations, a gentleman appeared who introduced himself as Senor Adalberto Demara. He said he was 37 years old and a neighbor of Magdalena. The reason for his visit was to try to help us with information. ... |179|

Kino Project Excavations Immediately Before Discovery of Kino Chapel
Kino's Remains & Chapel Found In Corner of Palacio Municipal & Its Clock Tower 
Arturo Romano Pacheco Photograph 1966 

Wasley Starts Digging Near Palacio Municipal
May 10, 1966 Tuesday
Magdalena, Sonora

Dr. Wasley returned to Magdalena this afternoon. He had been absent since the 3rd of this month to attend the annual meeting of the Society for American Archaeology. His notes covering this period are illuminating:

“While I was gone, excavations were continued in the area between the church and the Palacio Municipal. Excavations |194| were also completed under the choir [loft] in the church and in the north wall of the baptistery from the side of the Notaria [office], where Sr. Ruiz of the fabulous needles had said Kino was buried. When Kino didn't show up here, this character took off quietly and hasn't been seen or heard from since. May 10, 1966. Returned to Magdalena in the afternoon. I am trying to push work in the area of the Presidencia, which has not been previously explored, and Jiménez Moreno is trying to push work in the area of the “puestos de Articulos Religiosos” [shops where religious goods are sold], which turned up only a vast amount of much disturbed earth last year."

Dr. Wasley was now convinced, as I had been from the beginning (but not yet Jiménez Moreno), that the Campos church in J. Ross Browne's watercolor sketch of Magdalena, because of two different vanishing points in his perspective, had been located to the northeast of the facade of the present church and not to the northwest as our team leader thought. This is the why Dr. Wasley wanted to explore the area of the “Presidencia” (Palacio Municipal). I was very happy with his decision, for Professor Jimenez Moreno had been constantly intensifying efforts in front of the parish church and northwest of it around the vacant lot.

Dr. Wasley's decision was an excellent one, and it was on this same day when, conscious of the fact we were running out of time (we were receiving more bad news from Mexico City), he decided, as he told me as we stood in front of the Palacio Municipal, to strip that area in order to accelerate matters to see if, at the very least, we could find the foundations of the Campos church. He also believed that the chapel in which Kino had been buried was likely to be near them. ... |195|

Editor Note: Wasley's reference to "Sr. Ruiz of the fabulous needles" is Santiago Ruiz, a dowser or "zahurino" who travelled from Tucson. Jimenez Moreno, over the objections of other team members and parish priest Santos Saenz, permitted Ruiz to use divining rods in a free attempt to find Kino's remains in present parish church. Jimenez Moreno rationalized the used of Ruiz' services in that he may have knowledge of popular traditions about the location of Kino's grave site. See disuccion in the entry for Sunday, May 1, 1966.  

Old Drawings Sent By Cronistas In United States Indicates Kino Chapel Near Palacio Municipal
To the Grand Finale
Chapter 13

May 11, 1966 Wednesday
Magdalena, Sonora

Today I began to act on an idea I had been musing over. A photographic reproduction of an 1879 pencil drawing by Alphonse Pinart shows the ruins of a religious building in the foreground with the front view of the present church and “casa cural” in the background. The ruins in the drawing indicate a rather small bell tower and part of a wall which for the most part has collapsed. This ruined wall has some kind of opening or entrance. To me, this sketch represented the old chapel of San Francisco Xavier and not the Campos church, as some persons were prone to think. I will explain what I did to confirm my hypothesis.

Only a few days ago, I had received from some new and wonderful friends in Tucson, Arizona, Byron and Jane Ivancovich, and from George Eckhart, two excellent photographic reproductions of drawings made by early travellers to Magdalena, Alphonse Pinart and Henry Cheever Pratt (see Figs. 50 and 61). The Ivancoviches had been promoting knowledge about Father Kino in many ways, and it was at their home that I met Father Charles W. Polzer, S.J., who was very enthusiastic concerning Kino and with whom I later made a special trip to Cocóspera to photograph what was left of its ruins.

The reproduction sent by the Ivancoviches had been especially requested by them for me from the John Carter Brown Library of Brown University in Providence, Rhode Island. It was of a pencil sketch of Magdalena, one that had been the basis for an engraving of Magdalena that appeared in John Russell Bartlett's published version of his mid-19th century travels (Bartlett 1854: I: opp. 430). The |200| original drawing was done in 1851 by Pratt, an artist travelling with Bartlett. [1]

 Pratt's wonderful panoramic view of Magdalena revealed two things:
 1) The center of Magdalena, that is, the original “traza” with the Campos church seen on the left of the present church, was fortified against Indian attack. A high wall can be seen enclosing the compound, just as Tubutama had once been fortified by a wall that enclosed it.
 2) The second and most important thing revealed by the drawing was the certainty that the Campos church was located to the right of the facade of the present church; that is, to its northeast rather than to its northwest as Professor Jimenez Moreno had thought. In Pratt's sketch, which drawn from the side opposite to that of J. Ross Browne's watercolor, it is located to the left and towards where the Palacio Municipal stood in 1966.

This told us we should dig towards the Palacio Municipal. The other photographic print, sent to me by my good friend George Eckhart, serendipitously arrived almost at the same time as the first one. It, too, was of a pencil sketch, this one drawn in 1879 by Alphonse Pinart of the present Magdalena church and of some ruins in the foreground.

I showed the sketch by Pratt to Dr. Wasley, and after seeing it he completely agreed with me on the possible location of the Campos church. He thought, however, it would be wise to cross the river to the other bank of Magdalena. This would be the day-after-tomorrow because he had already started to strip the area in front of the Palacio Municipal and he had to be there to direct the stripping. Once on the west side of the river, we would look for the spot from where Pratt had drawn his panoramic view of Magdalena. ... |201|

Present Church (left), Kino's Chapel (right) - Figure 50
Dirt Mound left of Kino Chapel is Remnant of Campos Church
Artist Alphonse Pinart
Magdalena 1879

Pinart Drawing (1879) Clears Up Deceptive Perspective of Browne Painting 
May 11, 1966  Wednesday
Magdalena, Sonora

The photograph with the reproduction of the Alphonse Pinart pencil sketch of Magdalena was also very interesting, and I had been carefully studying it. It represented the present church of Magdalena looking full face to the viewer, with its complete facade, bell tower, and “coronamiento” (an almost baroque crowning) as well as a great part of its dome and of a considerable part of Father Comellas's “casa cural,” with a large arched entrance, abutting the nave of the church. But in the foreground, towards the right hand of the artist, the ruin of a religious edifice can be seen. Some authors have mistaken it for the Campos church, and when they refer to it, they identify it as such. But I recognized features in the sketch which told me this ruin was not that of the Campos church.

In the first place, in working out the proportions, it becomes clear the bell tower is too small to have been the Campos bell tower. It also lacks the fortified staircase which otherwise is to be seen in J. Ross Browne's 1864 watercolor.

Secondly, what is left in Pinart's sketch of the main entrance to the supposed Campos church faces Father Comellas's casa cural; that is, it is approximately parallel to it. We are seeing its rear, as if we were looking at it from the apse.

In Pinart's drawing, the facade of this ruin doesn't appear to be aligned with that of the present church as it seems to be in J. Ross Browne's visually deceptive perspective, a perspective which not only tricked our team leader, Professor Jiménez Moreno, but many others as well. The confusion resulted from the fact that Browne's sketch has two different vanishing points.

I had been given by someone in Magdalena, whose name I have regretfully forgotten, an old photograph which resulted in something quite amazing. It had been taken from the very spot where Pinart had made his drawing of the present church of Magdalena and of a ruin which turned out to be that of the Kino chapel for which we had been searching.  ... |202|

Present Church (right center) and Campos Church (left center) - Figure 61
Henry Cheever Pratt
Magdalena, Sonora 1851

Pratt Drawing (1851) Shows Campos Church Near Present Palacio Municipal 
May 12,1966 Thursday
Magdalena, Sonora
First Entry

Early this morning, before the heat rose, Dr. Wasley and I decided to cross the Rio Magdalena to its west side and climb the hill there in search of the place where one of Bartlett's artists, Henry C. Pratt, had drawn his panoramic view of Magdalena (see Fig. 61). We took along the reproduction of his sketch to check the accuracy of the drawing. |202|

We were fortunate to be able to cross the river in Dr. Wasley's van over a good modern bridge. Once on the hill, we guided ourselves by the location of the Magdalena church, and we were able to find the exact place where Pratt had stood when he made his drawing. Even some of the same giant organ pipe cactus and saguaros still seemed to be there.

This experience was an exhilarating one. There, in front of us and with little change, was the town of Magdalena with the present church standing out as in the Pratt sketch. But instead of the old Campos / church, which in the panoramic view of the village is to the left, we now saw a little more in that direction the clock tower of the Palacio Municipal. This was extremely important, for now we knew for sure that the remains of the Campos church would probably be located quite close to the clock tower, and perhaps the foundations of Kino's chapel as well.

The only thing missing from Pratt's drawing of Magdalena was precisely what we were looking for: the chapel. We afterwards found out that its location was indeed right next to the Campos church. Why did Pratt leave out the chapel? Everything else is perfectly clear and in order.

I am unable to explain why Pratt left the chapel out. It also had a little tower that would have stood out clearly next to the Campos church. We know that twenty-eight years after 1851, the year Pratt made his drawing, the chapel still existed. Its ruins, still with the small bell tower but with the nave turned into a heap of earth, are to be seen in Pinart's 1879 sketch. By that time, the Campos church no longer existed and is seen in Pinart's drawing only as a big mound of earth in front of the small bell tower of the Kino chapel. Some informants more than 80 to 85 years old, who had been born in Magdalena, had explained to Jimenez Moreno, Sánchez de la Vega, and Fathers Cruz Acuña and McCarty that when they were small children they used to play on a big mound located in the direction of the southeast corner of the Palacio Municipal.

Dr. Wasley and I returned to the heart of Magdalena convinced that while the Kino chapel didn't appear in the Pratt sketch, the Campos church had stood very near the present clock tower. Wasley had "hit the nail on the head," or “dio en el elavo,” as we say in Spanish, when on his return to Magdalena he had immediately decided to strip the area in front of the Palacio Municipal.

As soon as I returned to the excavations, I also directed my workers to advance the digging from where we were located a few meters away from the clock tower toward the north, and to follow the odd looking foundations that the Fr. Pérez Llera had built for his school. |203|

Pérez Llera had started from the old Campos "casa cural," which he called the casa de Magdalena ("house of Magdalena"). He had literally written that he had "added three rooms to the house of Magdalena," to none other than what had been Father Campos's house and that of priests who followed him. I suspected that those strange foundations that turned at an angle of about 20 degrees towards the clock tower could lead us to the foundations of the Campos church because the area that looked like a cobblestone space could be the foundations of the Campos church or of its bell tower.

This cobblestone space had been a mystery. Because the foundations we had uncovered for the school built by Pérez Llera seemed to end precisely and mysteriously where the cobblestone space began, my initial hypothesis was that the cobblestone area was a kind of minor plaza built for some unknown reason by the Franciscans. Very soon, however, that hypothesis was destroyed by new evidence, the evidence from the drawing by Alphonse Pinart.

If this were so, we could now say we had finally found the long lost chapel for which we had been so earnestly searching. But this new hypothesis had to be proven.

How did I find out that Pinart's drawing was of the Kino chapel and not the ruins of the old Campos church? This should be explained in some detail. ... |204|

Present Magdalena Church (left) with Comellas Casa Cural and Kino Chapel (right)
Alphonse Pinart Drawing - 1879 Figure 50

Superimposition: Pinart Drawing Shows Kino Chapel From The Back
On the day I received the Pinart sketch from George Eckhart, I started to study it very carefully. For there in the drawing, looking me in the eye, as it were, was the present church of Magdalena. And to the right in the sketch were the ruins of an old religious edifice with a big mound of earth in front of a rather small tower. By studying the perspective, it was possible to see that the proportions of this tower compared with those of the present church were not those of a large, massive tower. The J. Ross Browne watercolor, on the other hand, shows the Campos church with a tower of more or less large proportions.

Then I noticed several other differences between the Campos church as shown in Browne's watercolor and the church and bell tower in the Pinart sketch. The Pinart drawing shows part of a facade which had not yet collapsed. Its small arched entrance is still to be seen. However, while the facade seems to be abutted to the tower, as it really was, we are not seeing the front of it, but the back, as indicated by the shading in the drawing. Pinart was looking at the ruins of this religious structure from where the apse had been; that is, from the back. This tells us that the facade of this building was almost facing Father Comella's "casa cural," and not the Magdalena plaza. The Campos |204| church in Browne's watercolor, on the other hand, is clearly facing the plaza.

Another important difference in these two sketches is that while the bell tower of the Campos church was provided with a very large defensive staircase, one similar to that seen today on the west bell tower of Mission San Xavier del Bac, the bell tower in Pinart's drawing has no such staircase. This means that the belfry in the latter tower was most probably reached by a spiral staircase fashioned out of mesquite. ... |205|

Post 1937 Photograph of Magdalena by Unknown Photographer Figure 60
Present Magdalena Church (left) and Former City Hall (right)

Olvera Superimposition: Matching Walled-in Arch of Present Church Office with Post 1937 Photograph and Pinart Drawing
Superimposition: Old Photograph Taken From Same Vantage Point As Pinart Drawing

As if to confirm my hypothesis, I had been given an excellent old photograph that showed part of the facade of the present church as well as the clock tower of the Palacio Municipal (see Fig. 62). Amazingly, the photograph had been taken almost from the exact place, angle, and distance where Pinart had situated himself when he made his drawing. The details of the facade of the 1832 church are so well drawn that it would be possible in the future to restore it precisely to its original form.

The old photograph showed the place, later walled in with another story added to it (see Fig. 63), where the arched entrance to the casa cural used to be. It also showed the two doors to the right of where the large and imposing arch had been.

There was only one thing to do, and that was to superimpose the Pinart drawing on the photograph. In this new drawing, a mounted cowboy lighting his cigarette and two young girls are in the foreground (Fig. 64). The photograph is undated, but it was probably taken after 1937 when, according to an informant interviewed by Professor Jimenez Moreno, the local Monument to Father Kino was erected. In spite of its hazy appearance, this monument can be seen in the photograph behind the horse's head and in the distance in front of the "casa cural." Also, the facade of the present church is here the same as in another photograph taken by Western Ways of Tucson, Arizona, and dated 1938 (see Fig. 56). In this photo, the Kino monument is seen in the foreground.

The year 1937, given by Professor Jimenez Moreno's local informant as the date when the monument was built, is probably correct. Professor Eduardo W. Villa (1937: 130-131), explaining how he and Serapio Davila excavated in Magdalena in 1936 to try to find Father Kino's remains, wrote that when they thought they had finally found the foundations of the chapel in which Father Kino had been buried (which were actually the foundations of Father Pérez Llera's school), they conceived the idea of erecting a monument to Father Kino right there. Later in 1936, Professor Villa began to work on this project. |205| The monument was there in 1938 when Western Ways took the photograph, so one can conclude it was erected in 1937. ... |206|

Registration Points: Arch of Comellas' Casa Cural Built Around 1875
Left Photograph: Beginning of Demolition of Arch Figure 63   
Right Photograph: Before Demolition, Walled-In Arch Outlined By Flaking Plaster of Front Wall of Present Church's Office -  Left of Second Story Window Figure 34
Jorge Olvera Photographer 1966

Superimposition: Matching Walled-in Arch of Present Church Office with Post 1937 Photograph and Pinart Drawing
Using tracing paper, I tried several superimpositions using excellent registration points that nearly matched in Pinart's drawing and in the photograph. These points were in the arched entrance to Father Comellas's "casa cural." The photograph indicated the same entrance, but by 1938 it had been walled in and converted into a small building raised a little higher over the arch. The outline of this arch could still be seen in 1966 on the face of the building, which later became the office for the parish notary. The curvature of the arch could clearly be seen in the wall where the plaster had flaked off because of differential settlement of the lower walled-in portion. I took a good photograph of this architectural witness (Fig. 63).

Dr. Wasley had noticed the existence of this walled-in arch in 1965, for he included it in a quick sketch he had made in his field notes of the present church and the casa cural of Father Comellas (Wasley 1966). His drawing, which he labelled "iglesia actual de Santa Maria Magdalena," shows the facade of the present church in a very schematic way. Next to it, he drew the new small building where, according to the Pinart sketch, the arched entrance to the Comellas casa cural used to be, and wrote above it "oficina de la curia." He also drew the arch, cut in half by the window of the upper story, as well as the complete casa cural up to its second entrance and final wall. He wrote above it: "Casa cural de Comellas." Finally, above the last wall of the second entrance, he wrote, "El muro de la casa cural de J. Ross Browne" or, "the wall of the "casa cural" depicted by J. Ross Browne." Here, however, he was still influenced by Jimenez Moreno's mistaken interpretation of the Browne watercolor. He believed with Jimenez Moreno that this wall was an aligned continuation of the facade of the church when, in reality, it moved away from the church in a perpendicular fashion, as our later excavations of its foundations revealed.

During the final days of the project, and after we had oriented ourselves with Henry C. Pratt's panoramic view of Magdalena that showed us the Campos church used to be located near the Palacio Municipal, Dr. Wasley began to agree with me in everything.  By superimposing the 1879 Pinart sketch on the post-1937 photograph, I would try to convince my other colleagues, Sr. Sánchez de la Vega, Father Cruz Acuña, and Cornrado Gallegos. Professor Jiménez Moreno remained reluctant to accept the idea that the ruins in Pinart's sketch could be those of the Kino chapel. He continued to be convinced that they represented the ruins of the Campos church. |206| 

Jorge Olvera's Composite Sketch Tracing - 1966 Figure 64
1938 Photo of Magdalena (Figure 63) overlayed by 1879 Pinart Drawing (Figure 50) Reveals Location of Kino Chapel Foundations Within Inches of City Hall Clock Tower Present Church (left) and Kino Chapel (center) and City Hall (right) 

Superimposition: Overlaying Pinart Drawing on Post 1937 Photograph Locates Kino Chapel Near Palacio Municipal
Romano Takes Over Direction of Excavations From Jiménez

I finally found the correct superimposition of drawing and photo (Figs. 50, 62, 64). This overlay of the two images worked perfectly, and it told me where we would finally find Father Kino's grave site. This was right next to the clock tower of the Palacio Municipal, and its foundations would probably be located near its northeast corner. Dig­ging in that direction, we would see if they still existed.

Professor Romano returned from Mexico City during these last exciting days. Finally and abruptly, the tremendously entangled and complicated parts of the puzzle were coming together. It had not been easy for Professor Jimenez Moreno to arrange for Professor Romano's return to Magdalena. ...

As we had approached the Palacio Municipal with our excavations, we had hit a Franciscan cemetery and had begun to find skeletal re­mains scattered everywhere. Which of these could be Kino? It was like looking for the proverbial needle in a haystack.

Just at that moment of despair and confusion in our research ef­forts, Francisco Gonzalez de Cossio, a famous Mexican historian who specialized in the viceregal history of northern New Spain, made things worse by publishing an article in one of the leading newspapers of Mexico City under the headline: THE REMAINS OF FATHER KINO WILL NEVER BE FOUND. And in the article he pretended to dem­onstrate why.

This was the atmosphere that prevailed in Mexico City with respect to our project, and probably in Sonora and Arizona as well. The Min­ister, Agustín Yañez, was now nervous and quite angry. Consequently, all serious researchers, and especially those in the National Institute of Anthropology and History, thought ours was indeed “un proyecto descabellado”, a crazy project. No one who thought himself worthy of being regarded as a serious researcher or scientist would be willing to expose himself or herself to ridicule. Given this atmosphere, not even the Minister of Education was able to recruit someone daft enough to go to Magdalena.

This is why Jimenez Moreno's great perseverance and faith are to be admired. He pleaded with the Minister for a physical anthropolo­gist, and it would be better if it were Romano. Romano had already |207| been in Magdalena and made two important contributions to the project: the explorations of the "Proctor Chapel" and at San Ignacio. This work had eliminated two sites favored by everyone for the Kino burial place.

But Jiménez Moreno’s pleading didn’t work. He only received a ministerial scolding. Nevertheless, he remained undiscouraged. He made a final effort, this time bringing the matter before the President [of Mexico] himself. He finally obtained what he desired and needed, the services of Professor Romano.

So Professor Romano was among us again. And fine gentlemen that he is, he accepted not because it was a presidential request, but because he was a friend of Jiménez Moreno and would not let his friend down.

As soon as he arrived in Magdalena, Romano [INAH Mexico physical anthropologist Arturo Romano Pacheco] very discretely asked me if we had any idea where the long lost chapel and tomb of Father Kino would be.

I told him that Dr. Wasley did, in fact, have a general idea where the chapel foundations could be found, and I believe I told him about our experiences with the Magdalena sketches made by J. Ross Browne and Henry Pratt. I told him that Wasley and I had been happy to have our suspicions confirmed by finding, very near the southeast corner of the Palacio Municipal, a Jesuit foundation made of boulder held together with mud and clay mortar. I seem to recall I also told him that Professor Jimenez Moreno differed with us about the location of the chapel foundations, that the professor continued to believe they were either in the direction of the area around the vacant lot or in the jail yard.

Romano must also have spoken with Dr. Wasley and received confirmation of what I had said. He took my suggestion and started to direct excavation towards the area in front of the clock tower of the Palacio Municipal. ... [208]

Burial Record of Jose Gabriel Vega In Kino Chapel 1837
Prisoners Help With Kino Excavations

May 12, 1966 Monday
Magdalena, Sonora
Second Entry

This was a busy and lucky day. Most of us worked in the Parish Archives, including Professor Jimenez Moreno, Father Cruz Acuña, Sanchez de la Vega, Father Kieran McCarty, and I. Feeling somewhat relieved by what the Pinart sketch had disclosed, I felt more free to help with archival research.

We came upon a revealing document in the Libro de entierros, the book of burials. I don't recall who found it, but it occasioned general happiness among all the team members. The document read: “Entierro de Jose Gabriel Vega: El 27 de junio de 1837, Jose Gabriel Vega de 90 años de edad . . . su cuerpo fue sepultado enfrente del nicho de Senor San Francisco en la Capilla Vieja” ("Burial of Jose Gabriel Vega: June 27, 1837, Jose Gabriel Vega, 90 years of age. . . his body was buried in front of the niche of Señor San Francisco in the Old Chapel").

This document, signed by Franciscan Fr. Rafael Diaz, told us that the chapel of San Francisco Xavier remained in use in 1837, at least for burials, and that it contained a niche for an image of Saint Francis Xavier.

Professor Jiménez Moreno suggested that we start excavation in the municipal jail yard at the same time as others continued that Dr. Wasley and I were carrying out in front of the clock tower of the Palacio Municipal. ...

Almost everybody took part in the excavations within the jail and jail yard, even the prisoners themselves, some of whom had been convicted of murder. They seemed quite happy to be included in out project. |209| We soon became aware that they were turning out to be the best diggers. The dug with great enthusiasm and gusto, especially near the walls, ...

Drawing of Locations of Archaeological Excavations Figure 36
The Historic Center of Santa Maria Magdalena, Sonora
Topographical Engineer Conrado Gallegos 1966
Salvador de Noriega Remains Indicated by Skeletal Figure
The Compass Direction of North Is Towards The Lower Right Corner

Jesuit Foundations Made of Boulders & Clay-Mud Mortar Found Near Palacio Municipal
May 14, 1966 Saturday
Magdalena, Sonora

 ... From the day of his second arrival in Magdalena, Dr. Romano has be place in charge of excavations by Professor Jiménez Moreno, much to the relief of the rest of us.

The excavations inside the jail compound did not expose any old foundations as Sr. Rubén Parodi had though they would. A total of eighth trenches were dug were Professor Jiménez has conjecture that the Campos church and the chapel would be found, but with out any success. ...  |212|

Even so, excavations in this trench were carried out with great zest |212| and by the prison inmates, who did a very good job. ...

During these days we began to locate some early Jesuit foundations while working the area in front of the Palacio Municipal toward the southwest corner of the building. The were made up of river boulders and mud and clay mortar. ... |213|

We started to dig inside the municipal jail as well as outside of it in front of the Palacio Municipal and in the area near the Kino monu­ment with the aid of the jail inmates now, they were so enthusias­tic about Kino that they helped us excavate outside the jail, returning inside at the end of their working day.

It was then that the people of Magdalena saw us going back and forth, inside and outside the jail, digging in what to them must have looked like a completely haphazard and crazy way. Every time we tried to get some rest by visiting the soda fountain, they would start to play on juke boxes all around the plaza the popular and humorous piece of music called “La Banda Esta Borracha”, "The Brass Band is Drunk." [Editor Note: To hear this very popular song, one of the most popular in 1966, click https://www.youtube.com/watch?v=WclkOKAYNGQ].

After two seasons of apparently unsuccessful excavations that must have seemed to them totally ludicrous, they were laughing and poking fun at us in this clever way.

During the days between the 12th and 14th of this month is when we started to locate the first Jesuit-period foundations. These discov­eries quickly led us to other important ones. I had already started to find a large part of the southeast foundation of Kino's chapel while excavating its southwestern profile in Trench #17. Dr. Wasley had been excavating the area adjoining the east side of this wall when he decided to strip it ( Trenches #21, #31, and #33), and had even excavated its but­tress without realizing it at the time. This was confirmed a few days later by historical documents found by Father Kieran McCarty.

The burial of a European was found in front of the portion of the foundations I had discovered, and the burial was already being exca­vated and studied by Professor Romano.  ... |214|

Jesuit Period Foundations: Boulders in Clay-and-Mud Mortar Figure 77
Franciscan Period Foundations: Quarry Stone and Lime-and-Sand Mortar. 

Jesuit Foundations Excavated Towards Palacio Municipal
May 16, 1966, Monday
Magdalena, Sonora; Remedios, Sonora

Professor Jiménez Moreno saw the advantage of the trip to Remedios. Because we would be examining the foundations and walls built by Father Kino himself, it could tell us definitely whether or not we were finding Jesuit structures in Magdalena. With the discovery of the possible foundations of Father Campos's church, our laborers were now better trained in the identification of Jesuit foundations. We had been trying all along to explain the difference between the natural earthen soil and the clay-and-mud mortar in Jesuit foundations. We also had the opportunity to show them the difference between these and Franciscan foundations, which were not made with boulders, but with quarry stone and lime-and-sand mortar. Franciscan walls, moreover, were made of fired brick, and not with adobe bonded with clay mortar. We had taught them how to excavate Jesuit foundations without destroying them, because the mud-and-clay mortar could be easily mistaken underground for natural hardened earth. We had already trained them to be able to detect Jesuit foundations by the color of the mortar, its texture, its consistency, its composition, etc. ... |217| ...

When we arrived in Magdalena, we were greeted with very good news. Professor Jimenez Moreno, who had stayed in Magdalena overseeing the excavations, had discovered the north right angle corner of a Jesuit type of foundation that the excavators were following towards the north near the clock tower of the Palacio Municipal. The laborers were following a footing built of boulders and clay-and-mud mortar, or “zoquete,” as Sonorans call it, that I considered could be the foundations of the Kino chapel. When they arrived at the end of this foundation, Professor Jimenez Moreno saw that at that very point the footing turned towards the left, forming a right-angled corner (see Fig. 36).

I think that all of us present when this good news was given to us were pretty happy about it. Our hope of finding Father Kino's remains had greatly increased. We would no longer be teased with the juke box music, "The Brass Band Is Drunk."  ... |223| Palacio Municipal in a westward direction, clearly indicated the foundation formed part of a rectangular building. Recalling the overlay I had made of the Pinart sketch and old photograph, it seemed to me, especially, the position of these foundations in relation to the clock tower indicated they were those of the chapel of St. Francis Xavier.  ...  |223|  ...

During these last days of our excavations and archival research work, an incredible amount of data, including documents, rained on us as if from heaven with amazingly good information. At the same time, the early Jesuit foundations were showing up and their shapes and ground plans were putting themselves together like the last pieces of a difficult jigsaw puzzle.

Jimenez  Moreno's discovery cheered us up. The turn in the foundation, now headed towards the Palacio Municipal in a westward direction, clearly indicated the foundation formed part of a rectangular building. Recalling the overlay I had made of the Pinart sketch and old photograph, it seemed to me, especially, the position of these foundations in relation to the clock tower indicated they were those of the chapel of St. Francis Xavier.

The new trench in which the workers found the turn of the foundation, followed in Trench #17 and continued in Trench #26b, was labelled by Jimenez Moreno as Trench #17b (see Fig. 36). The workers |224| were told to continue the excavation in this new trench towards the Palacio Municipal. I could see that if this foundation happened to continue in the direction of the Palacio Municipal, our excavations would probably run right into the council chambers. What would happen then? If the foundations continued in that direction, we would probably have to tear down the entrance to the Palacio Municipal. Already the mayor was entering his office through a side door on Calle Cucurpe. Fortunately, the enthusiasm and cooperation of the authorities was such that the mayor himself, Sr. Gerardo Nava Garcia, told us, "If necessary, you can excavate under my own desk." ... |225|

Kino Chapel Burial Excavations Correspond to Church Burial Records
(1) Kino (1711). (2) Gonzáles (1712). (3) Iturmendi (1712).
(4) Noriega (1739). (5) Vega (1837).

Kino Chapel Burials Including Salvador de Noriega's Burial at Front Door 1739
May 17, 1966 Tuesday
Magdalena, Sonora

The Jesuit foundations, probably those of the Campos church and of Kino's chapel, were now showing up. The historians were now finding more information on the St. Francis Xavier chapel, with different kinds of burials made inside and outside of it, but especially inside and at different periods. Encouraged by this good situation, Dr. Wasley and I concentrated our workmen in the area located northwest of the corner found by Jimenez Moreno. We were almost sure we would soon find the other corner of this structure. If so, it would most probably be the chapel in which Father Kino was buried.

Among the documents being found in the nearby parish archives were many describing burials made inside the San Francisco Xavier chapel. Among the more important ones, besides that recording the 1837 burial of the 90-year-old Indian named Jose Gabriel Vega, already mentioned, was the 1739 burial of Salvador de Noriega, a Spaniard, who "was buried in front of the door of the chapel of San Francisco Xavier in Magdalena."

Several other burials were made inside the chapel of St. Francis Xavier. Most of the records of these were found by Jimenez Moreno, Sanchez de la Vega, and Father Cruz Acuña, but I found records of three of them myself:

   “Year of 1740
   “On the 21st of June Francisco Xavier, child son of Ignacio Tapia and Chepa de Orozco servants of Lorenzo Velasco, died and was buried in the chapel of Sn. Xavier by me.
    “On the 18th of October a small child of Philipe and Rosa de Acuña servants of Joseph Moraga died they have not had the courtesy of giving me his name they buried him in the chapel of Sta. Magdalena. |225|
   “On the 2nd of November Maria de la Asumpcion, child daughter of Don Miguel de Mendoza Castellanos and Dona Josepha de Vreas, died and was buried in the chapel of San Francisco Xavier in Santa Magdalena. ”
   [Gaspar Stiger Jhs]  ...  |226|

Fernando Grande's Report with Description of Kino Chapel 1828
May 18, 1966, Wednesday
Magdalena, Sonora

One of the last foundations still being excavated, oriented northwest to southwest right in front of the entrance to the council chambers (Sala de Cabildos) in the Palacio Municipal, we are almost sure corresponds to the west wall of the chapel of St. Francis Xavier.

Now we can be virtually certain. From among the documents Father McCarty recently brought from San Xavier del Bac in Tucson, he showed us one today strongly supporting our hypothesis -- one that became our first choice two days ago when Professor Jimenez Moreno discovered their northeast corner -- that these foundations are those of the chapel. The document is a transcript copy made by Father McCarty himself of a holograph report by don Fernando Grande, a man who had been sent by the Sonoran vice governor to inspect the missions' economic condition. Titled "Cartas de Sonora" and dated 1828, the original was then extant in the archives of the Colegio de la Santa Cruz de Queretaro.

I am reproducing the original text in Spanish, followed by an English version:

DOCUMENTO NUMERO 19 --1828 [San Ignacio] FABRICA MATERIAL. CAPILLA AYUDA DE PARRA QUIA DEL PUEBLO DE SANTA MARIA MAGDALENA VISITA DE LA MISION DE SAN IGNACIO. -- FABRICA MATERIAL. La Capilla de este pueblo es mediana su materia es de adobe su portada al medio dia presenta una torrecita mediana en que estan colocadas tres campanas y una esquila mediana, no tiene cosa particular que llame la atención, el Altar principal y único esta en el Presbiterio, en el estan colocados una Imagen de Cristo Crucificado con otro de la Virgen de Dolores al pie de talla mayor una menor y la otra de regular escultura y en unos nichos que enforma de retablo hay en la pared del altar estan colocados la Imagen de Santa Magdalena, Patron a del Pueblo, de talla menor buena escultura, un San Francisco Xavier y un Beato José Oriol, ambos de talla y de imperfecta escultura. A medio cuerpo de la Iglesia esta un nicho donde esta colocada en una Urna una Imagen de talla mayor de San Francisco Xavier |228|, objeto de la devoción de toda esta parte alta de Occidente, de hermosa y grave escultura.

DOCUMENT NUMBER 19 -- 1828 [San Ignacio] MATERIAL STRUCTURE. VISITA [mission station] CHAPEL OF THE PUEBLO OF SANTA MARIA MAGDALENA VISITA OF MISSION SAN IGNACIO. MATERIAL STRUCTURE.

The Chapel of this pueblo is of medium size, its material is adobe, its portal faces south and displays a small medium sized bell tower in which there are three bells and a small one. It hasn't any particular attraction. The main and only altar is in the sanctuary. In it are placed an image of Christ Crucified with another one of the Virgin of Dolores at the foot [of the Crucifixion] of a large size carving; another one of minor carving and another of a regular-sized sculpture. And in niches which are in the form of retablos in the wall of the altar are placed the image of Santa Magdalena, patroness of the pueblo, a minor but good sculpture, as well as a San Francisco Xavier and a beatified Jose Oriol, both carved but of imperfect sculpture. In the middle of the church nave there is a niche in which a large sized image of San Francisco Xavier is placed, a beautiful and solemn sculpture that is an object of devotion in all this upper [northern] part of the West.

There are several things which I wish to point out in relation to the chapel of St. Francis Xavier. In the first place, we have a very good drawing of what remained of this chapel in 1879 when Alphonse Pinart sketched its ruins. He was the first and last one to depict it before it completely collapsed after the 1887 earthquake. In what is left of its small bell tower, we can still see that the upper stories of the tower had mudejar chamfered corners and stilted arches of Muslim origin, a tradition continued by Franciscans in the bell towers of San Xavier del Bac and, until they were altered by modern priests, on the original bell towers of the present parish church of Magdalena as can be seen in the Pinart sketch (Fig. 50).

Some of the small sculptures that Fernando Grande mentions in his description of the chapel of San Francisco Xavier in Magdalena, including that of José Oriol, are now in the custody of the Mission of San Ignacio (see Fig. 74). The oldest are real works of art dating from the 17th and 18th centuries. ….

Recovered Foundations of Kino's Chapel Figure 75
Plan by Topographical Engineer Conrado Gallegos - 1966
Above Kino Chapel Foundations Is The Palacio Municipal with Clock Tower to Left
Father Perez Llera's Buttress Projects Outward From Lower Wall

Kino Chapel Found
While I was taking photographs of the area in front of the Palacio Municipal from the top of the clock tower, my workers digging in Trench #17b came upon the corner opposite that discovered by Jimenez Moreno. The trench now turned toward the south, making sense of the three isolated fragmentary foundations located in that direction (see Fig. 36, general ground plan of the area in front of Sala de Cabildos) and letting us know they were part of the west wall of a rectangular structure that could very possibly be the chapel. The complete outline of these foundations was now being revealed.

With the corner just found turning towards the south rather than continuing west, the threat to the entrance to the Palacio Municipal was eliminated. This made everyone happy, especially the mayor. I was the happiest, because I was now sure that these foundations were not |230| those of a larger building, such as that of the Campos church, but of a much smaller one. Aided by Conrado Gallegos, and starting from the isolated foundations, I now measured the inner width of the structure. It was approximately 5 meters. We then measured the approximate length of this rectangular structure along its east wall since the west one was incomplete in most parts. The length was 16 meters. As soon as we transferred the measurements onto paper, we saw they accorded with the normal size for a chapel.

As the foundations of the north end of the structure indicated a closed unit, with no gap for a door, we deduced that access to this building would be on its south end. Careful excavations were then carried out in this section. The absence of stone foundations on the south side -- with the exception of a few foundation stones that turned in a westward direction from the southeast corner, assured us that the entrance to the building was on the south, and that it was flush with the starting surface of the east foundation (see Fig. 75, recovered foundations of the chapel).

No foundation stones were found on the west corner of the structure. That area had been greatly disturbed when the clock tower of the Palacio Municipal had been built, and for the same reason, when the facade of the Palacio Municipal and its entrance were built, that other area had also been disturbed. That is why we found the west foundation of the structure in such a fragmentary condition, as can be seen in the illustration (Fig. 75).

Nevertheless, now that the foundations of our hypothetical chapel had been found, we saw that they adequately matched Fernando Grande's description of the chapel of San Francisco Xavier.

In fact, everything matched Fernando Grande's description: the walls that rested on the foundations we had now discovered, in their almost complete form, were of adobe. Not a single vestige of burnt brick had been found. The portal, as Grande wrote, faced south. The building was, as he said, medium sized, and, as we discovered later, it had a bell tower as he had indicated.

The archaeological crew uncovered a burial precisely in the spot where, if this were Kino's chapel, the historical researchers had indicated there should be the remains of a Spaniard, Salvador de Noriega, buried in 1739. If I were right in considering this area to be the south end of Kino's chapel, then the burial, discovered by Dr. Romano and which was currently being excavated by him, was surely that of Salvador de Noriega and the structure behind it was the long lost chapel of San Francisco Xavier.

The archaeological crew uncovered a burial precisely in the spot where, if this were Kino's chapel, the historical researchers had indicated there should be the remains of a Spaniard, Salvador de Noriega, buried in 1739. If I were right in considering this area to be the south end of Kino's chapel, then the burial, discovered by Dr. Romano and which was currently being excavated by him, was surely that of Salvador de Noriega and the structure behind it was the long lost chapel of San Francisco Xavier. … |231|

Raft Foundation of Campos Church Tower
Square Stone Slab in Upper Right Corner of Photograph
View From Church Roof, Kino Monument (center left), Palacio Municipal (upper left) 

Raft Foundation of Campos Church Bell Tower Built for Unstable Ground
Professor Romano ordered his crew to strip the large ancient concrete slab, in front of the burial he was working on, a burial Dr. Wasley and I suspected was that of Salvador de Noriega. Initially, I had thought this concrete slab might belong, as I've said before, to the cobblestone space of a small plaza adjoining the end of the Franciscan foundations. But later on, when we knew from the documents brought by Father McCarty, that the Franciscan Perez Llera had added three rooms to the "house of Magdalena," and that the "house" or rectory abutted the bell tower of the Campos church, I had no doubt,that the huge stone slab was the raft foundation probably built by Kino for the bell tower of Father Agustin de Campos's church. ... |232|

Arturo Romano Pacheco, Head of the Department of Physical Anthropology, INAH
Exposing Kino's Skeleton With Kino's Skull In The Laboratory

Grave and Skeleton of Suspect #2
Kino Chapel Wall Buttress

May 19, 1966 Thursday
Magdalena, Sonora

Professor Romano finally finished very neatly exposing the skeletal remains found in Trench #17. We now could see because of their position with respect to the foundations of the structure that seemed to be Kino's chapel that there was little doubt the remains were those of Salvador de Noriega.

Just as I was about to take some photographs of the recent excavations from the highest part of the clock tower, including those of the presumed chapel, the raft foundation, and the burial discovered by Professor Romano, my camera suffered some damage. It would have to be taken to Tucson to be repaired.

I put this problem aside, and seeing that Professor Romano needed some help, I gave him a hand with the final touches in exposing the skeletal remains of Burial #1. While all of us were eagerly engaged in our own tasks, Dr. Wasley called us to look at a just-discovered skull that appeared to belong to another interment beginning to be uncovered in the area of Trenches #26b and #17b. The discovery had taken place precisely at 4:30 P.M.

One of the laborers, Francisco Xavier Varela, and a co-worker, Rigoberto Medina, had come  upon the skull. Unfortunately, when one of them had sunk his pick into the ground, the tip of the pick had hit the skull and caused a fracture (Fig. 76). .. |233|

Professor Romano started carefully to clean the skull in situ, and he directed the laborers to concentrate in the area of the discovery, being sure to excavate around it with the greatest care. They were to stop whenever they found bones. For Professor Romano, this was an extraordinary skull from many points of view. It could even be that of Father Kino. He told us he would have to study it thoroughly, and that he would now excavate the rest of the skeleton.

Since I could no longer take photographs because of my damaged camera, I also joined the historians working in the parish archives. It was then I found the document stating that in 1828 Father Perez' Llera added a buttress to one of the chapel walls that was in danger of collapse.

The document is titled, “Apuntes sobre los acontecimientos acaecidos en esta Colegio de la Santa Cruz de Queretaro desde el ano de 1821y sus Misiones basta el mes de Diciembre de 1844” [Jose Maria Perez Llera, 0.F.M.].—A.F.S.C.Q.Q. (McCarty collection).

The original Spanish reads as follows:

"Entre las necesidades que padecían aquellos pueblos era de las  mayores amenazar ruina la iglesia de Magdalena [la capilla] en  que se venera una imagen de San Francisco Xavier [5] quien con los beneficios abundantes que derrama en todos los habitantes de Sonora se ha granjeado la mayor veneración. Emprendi luego ver cómo evitar se viniere abajo y tal vez ocasionare esta  desgracia; pero como no contaba con otra cosa que una limosna de la Mitra y gastos del culto, y otras indispensables, sólo pense echarle un estribo que contuviera la pared que estaba desplomandose. . . ."

My English translation follows:

"Among the necessities that those pueblos were suffering, one of the major ones was that the church of Magdalena [the chapel] where an image of San Francisco Xavier is venerated was menaced with ruin. With all the bountiful benefits that it pours upon the inhabitants of Sonora, the image has won the greatest veneration. I immediately thought of preventing the chapel's collapse which could probably have a tragic ending. |234| But as I didn't count on anything but some alms from the bishopric, and some fringe benefits paid by the neighbors and from where my subsistence came, with other expenses for indispensable things and for those involved with the devotion I could only add a spur which would support the wall that was  already leaning over  . . "

In Spanish, the word "estribo", which literally means "stirrup," has, like the English word "spur," several different meanings. In this case, through the context we know that Father Perez Llera was using the word estribo to refer to a buttress. |235|

Reinterred Remains In Boxes on Each Side of Kino
Secondary Burials of Father Manuel Gonzaléz (lower left) & Father Ignacio Iturmendi
Kino Skeleton In Situ With Skull Removed For Laboratory Analysis

On Each Side of Kino Grave: Gonzalez and Iturmendi Secondary Burials Found
May 20, 1966, Friday
Magdalena, Sonora

Today I left very early for Tucson to have my camera repaired. I would also use the trip to buy some drafting materials for our draftsman, Conrado Gallegos, who needed them urgently.

By the time I returned from Tucson in the afternoon, Dr. Romano had managed neatly to lower the level of the excavation of Trench # 17b to the point where the skeletal remains of Burial #2 (which someone now called "Suspect Number 2") could be completely exposed. It was already evident these could be the remains of Father Kino. They were on the Gospel side of the chapel near where the altar would have been. Both Dr. Wasley and I shared this opinion, and Dr. Romano seemed to agree with us.

It was also on this day that the bones of two secondary burials, almost certainly those of Fathers Gonzalez and Iturmendi whom Father Campos had disinterred from Tubutama and reburied here in 1712, were found on either side of the extended primary Burial #2. … |235|

Kino Grave and Skeleton Found
Wasley Summarizes Field Evidence

May 21, 1966 Saturday
Magdalena, Sonora

While working in the area adjoining the clock tower of the Municipal Palace, and when excavating the area facing Dr. Wasley's recent discovery of a Jesuit type of foundation, I found another boulder and mud-and-clay mortar foundation that ran parallel to his and towards the area of the cobblestone raft foundation. This foundation appeared in Trenches #32 and #32b (Fig. 77). Now that the two foundations could be clearly seen and measured, the width between them and the span of what would have been the nave proved to be much larger in comparison with those of the other Jesuit structure which we now thought was the chapel. The distance between the two foundations |235| was approximately 5.60 m., a reasonable width for the nave of a medium-sized church. I also measured the width of the foundations of the structure we were now calling the chapel, measuring the segment exposed in Trench #26 in front of the right hand column of the clock tower of the Palacio Municipal. It was 1.05 m. wide.

The skull, which had been called "extraordinary" by Professor Romano, had now been transferred to the room in the Palacio Municipal where the municipal archives were kept. The room had been turned into a physical anthropology laboratory where Professor Romano began to study the skull with sophisticated anthropometrical instruments he had brought from Mexico City. He was now dividing his time between the study of the skull and the excavation and extremely neat exposure of Burial #2.

Suspecting that these remains could be Kino's, I also concentrated on careful exploration of the area of this interment. I looked for the rest of the foundations on the west side of the chapel and for any archaeological data or artifact that might strengthen the certainty this was Kino's chapel.

The entire team was working at a feverish pitch. While Dr. Wasley and I directed other excavations towards the north end of the chapel and Professor Romano took care of the interments, Professor Jimenez Moreno, Father Kieran McCarty, Sanchez de la Vega, and Father Cruz Acuña worked in the parish archives finding more documents supporting the identification of our archaeological finds.

In writing his report on the excavations, Wasley (1966) summarized nicely this correspondence between documentary and archaeological data.
The amazing finds were these:

"1) The historical researchers found documentary evidence that the Jesuit missionary Father Gaspar Stiger, a German [Swiss], had buried a Salvador de Noriega, in life employed by Lorenzo Velasco, just outside the door of the chapel of San Francisco Javier in Santa Magdalena, in August of 1739. The archaeological crew uncovered a burial in just such a spot with reference to one of the Jesuit period structures.

2) The historical researchers revealed that in 1828 the inspector Fernando Grande had stated - for the first time in all of the historical records that we know about - that the chapel faced to the south ("al medio dia") and that the archaeologists were able to determine from the foundations that this same structure did face to the south. It was much later, however, at the very end of the project and actually during the process of |236| winding everything up that Prof. Jorge Olvera finally found the foundations of the tower.

3) In this same document the historians were able to ascertain that the image of San Francisco Javier had been moved from the altar to about the midpoint of the nave of the chapel by 1828. The reason for this, we have to assume, was that the Fiesta de San Francisco Javier, celebrated annually and currently reaching an influx into Magdalena every year of an additional 10,000 people, had reached impossible proportions 140 years earlier in the tiny chapel, and the image had been moved to provide better traffic circulation through the chapel. In 1837, the historical documents reveal an elderly man of 90 years died and was buried inside the chapel in front of the niche of San Francisco Javier. The archaeologists found, at one side of the structure, about half way down the length of it, the burial of an old man with his feet towards the far side of the nave. The historical documents would seem to provide the identity of the burial, while the position of the burial would indicate that the image of San Francisco Javier, at the time that it was moved from the altar, had been installed on the west side of the nave.

4) The historical researchers found documentation to the effect that Father Pérez Llera was about to build a buttress to support one of the walls of the chapel. The buttress must have been built, because we found one outside the east side of the chapel. It was the only one we encountered ... "

It was through this kind of checking the documentary record against our archaeological finds that we were able to determine with certainty that we had found Father Kino's chapel. In the case of the identification of the buttress, I had noticed a few days earlier when Dr. Wasley was stripping his area that he had come upon a strange but salient feature on the east side of what was still then the hypothetical chapel. It was also made of river boulder ashlar stones mortared with mud and clay of the same color, texture, and consistency of the rest of the east foundation. For that reason, we determined to preserve it as part of the original footing. The 1828 document |237| of Father Pérez Llera had revealed that this feature was the buttress. …. |238|

In the afternoon of this same and very exiting day, I was helping Professor Romano with the final phase of carefully uncovering and exposing the remains of Burial #2. By then, Father Cruz Acuña, Dr. Sanchez de la Vega, and I thought this could be Father Kino (Fig. 79).

Dr. Wasley was helping to expose the lower limbs, and both of us, using great care, were removing the few surviving wooden fragments of the coffin. If these were the remains of Kino's wooden coffin, they were now more than 250 years old.

At this juncture, it becomes appropriate to quote—in my English translation—the final lines of an excellent article by Father Cruz Acuña (1966: 50) written after we had uncovered Father Kino's skeleton:

“Dr. Romano said: I think we have found him. . . . Professor Olvera, somewhat nervous, remained silent, or I didn't hear what he said. [8 ] Dr. Wasley, in spite of his scientific and critical spirit, uttered the phrase: "It is like a dream."

Sanchez de la Vega was the only one who smiled absolutely sure and satisfied. . . .

Sanchez de la Vega had been able to contain his emotions because from the moment we figured out that the ruins in Pinart's sketch were not the Campos church, but the chapel, he was sure we had found it , and that underneath its floor we would find Kino. Moreover, having participated in former amateur efforts to find Kino's remains, he had become involved in the more logical steps taken by Professor Jimenez Moreno's team. He had also been mentally compiling all the archival and archaeological discoveries and had been tracking our movements every step of the way.

I had felt a similar sense of assurance, especially after the revelation in the Pinart drawing and, in those last and exciting days, after it had occurred to me that the foundations of Father Perez Llera's school would eventually lead us directly to the chapel.

Footnote [8] This is true. The rest of the group stood near Father Acuña while I was aiding Dr. Romano, a short distance away, with Father Kino's remains. But in a near whisper, I said, "Look! This is a 17th-century cross on his left clavicle!" |239|

Kino's Discovery Remains With
Bronze Baroque Crucifix Found on and Discoloring Left Clavicle
In Addition To Cassock Button

Crucifix and Cassock Button Found on Kino Skeleton
Dr. Romano and I were still cleaning some of the upper bones of Father Kino's skeletal remains when suddenly, as I brushed away the remaining dirt and dust of past centuries, a beautiful bronze crucifix suddenly appeared on the left clavicle. It was exactly 5:55 P.M. The emotion was too much for me. Not only had we found Kino, but we had one more confirmation of his identity: the very crucifix Father Kino had worn on his chest! I was sure this was Father Kino's crucifix. Its baroque style and ornamentation confirmed that it was a 17th century work of art. …. |240|

Kino Discovery Team starting in front row from left to right:
Rev. Santos Saenz, Dr. William W. Wasley, Dr. Wigberto Jimenez Moreno,
Dr. Jorge Olvera, Dr. J. Matieila and Rev. Ernest. Burrus, S.J.
Not shown; Rev. Kieran McCarty, O.F.M., Dr. Arturo Romano,
Cronista Gabriel Sánchez de la Vega, Rev. Cruz Acuña Galvez and
Topographical Engineer Conrado Gallegos

Team Meeting: Burial #2 Is Father Kino's Remains
Professor Romano had been studying the skull of Burial #2 practically since the day of its discovery at 4:30 P.M. on May 19. Considering the new discovery of the crucifix, he arranged for a meeting of the whole team to discuss whether or not Burial #2 was in fact Father Kino. By now, the majority of us thought that the remains of this interment were those of Kino. The meeting was held in the archives of the Palacio Municipal which, by now, had been turned into the personal laboratory of Professor Romano for his physical anthropological studies, and especially for the study of the skull of Burial #2. This was a closed door seminar. By now, several reporters from the media both of Mexico and the United States had sensed a discovery, and they already suspected that either Burial #1 or Burial #2 could be Father Kino. They had begun to follow us like hounds in search of fresh and exciting news.

None of us wanted any publicity before discussing the question of the identification of the remains thoroughly, and as none of us with the exception of Dr. Romano were physical anthropologists, we felt unqualified from a truly scientific point of view to say whether the remains of Burial #2 were really those of Father Kino.

The matter of the two-secondary burials that had been found yesterday on either side of those of Burial #2 entered into our discussion. That these were almost certainly the bones of Fathers Gonzales and Iturmendi seemed clear from an entry made by Father Campos in the burial register in 1712. A photostatic copy of the entry had been found by our team of historians in the Magdalena parish archives." It reads as follows: |242|

The English version is as follows:

The Year 1712

At the end of January, having brought from Tubutama the bones of Father Manuel Gonzales, missionary of many years in Oposura, ex-Visitor, who died in Tubutama on his way back from the Colorado River where he had gone with Father Kino the year 1702. And the bones of Father Ignacio Iturmendi, a missionary of Tubutama who died there the year of his arrival, on the 4th of June, 1702: We solemnly placed the remains in this chapel, those of Father Manuel on the side of the Gospel in a little box, and those of Father Ignacio in another one on the side of the Epistle.

Agustin de Campos [Rubric]

At this point, we were prepared to believe we had, beyond any shadow of reasonable doubt, located the chapel of San Francisco Xavier and, beneath its floor on the Gospel side of the altar, the mortal remains of Father Eusebio Francisco Kino: We were not, however, yet prepared to make the announcement to the world. That would have to wait for a few more days. |243|

The End of Jorge Olvera's Discovery Account
Finding Father Kino Excerpts

 Kino (San Xavier) Chapel (1711) and Campos Church (1706)
Kino Chapel Length: 54 feet (16.5 meters) Width: 23 feet (7.2 meters)
Foundation Width: 3.4 feet (1.05 meters)
Estimated Bell Tower Height: 28 feet (9.5 meters)
Buttress Wall Support Projects Outward From Wall
Campos Church Approximate Length: 70 feet (21 meters) Width: 20 feet (6 meters)
Measured Nave Interior Width 18.3 feet (5.6 meters)
Jorge Olvera - Concept Drawing - Conrad Gallegos, Topographical Engineer 

Charles W. Polzer
Pronouncement of The Mexican Academy of History

On May 24 the announcement was made to the general public; no doubt remained in the minds of any of the team or the experts called in after the initial conclusion was reached. The Reverend Ernest Burrus of the Jesuit Historical Institute at Rome, who luckily was visiting in Tucson, agreed in full. And finally on July14, 1966, the Academy of History met in Mexico City to review the evidence. Professor Jiménez Moreno presented seventy two depositions explaining the discovery. Then, Dr. Alberto Caso in the name of the Mexican Academy of History pronounced in favor of the identity of the remains. Padre Kino was found at last.

Dr. Charles W. Polzer, S.J.
The Discovery of Padre Kino's Grave
"Kino - A Legacy"

Padre Eusebio Francisco Kino, S.J. (1645-1711)
Kino Grave Site, Magdalena, Sonora, Mexico 1966
Secondary Burial of Father Ignacio Iturmendi Is To Right of Kino's Thigh

[T]he archaeological evidence, supported to a considerable extent by historical documentation, has conclusively demonstrated that the remains of Father Eusebio Francisco Kino have been found." William W. Wasley 1966

Although the archaeological evidence, supported to a considerable extent by historical documentation, has conclusively demonstrated that the remains of Father Eusebio Francisco Kino have been found, neither archaeology nor history by themselves could have established this fact. On the other hand, the physical evidence of the burial itself (including orientation, the coffin, and the crucifix on the left clavicle) and the physical anthropological characteristics as interpreted as the skeleton by Prof. Arturo Romano would alone have established the fact that this was Father Kino. In other words, the nature of the burial establishes it as belonging to a priest or missionary, while the physical characteristics of the skeleton establishes it as belonging to a European of Alpine stock.  As far as I have been able to determine no other priest of European ancestry and Alpine stock was ever buried in Magdalena.

William W. Wasley
Archaeology Notes on the Discovery of Father Eusebio Kino 1966

Today's Kino Plaza - National Monument of Mexico
Domed Kino Mausoleum (bottom right) Sheltering Kino's Grave & Skeletal Remains
Santa María Magdalena Church (top center) with New San Xavier Chapel to the right

Summary of Finding Father Kino
Bernard L. Fontana 

On February 14, 1965, on the fifty-third anniversary of Arizona's admission to the union as a state, a larger-than-life-size bronze statue of Father Eusebio Francisco Kino was dedicated and presented as the last of Arizona's two representatives in the Rotunda of the United States Capitol. (The other is a statue of copper magnate John C. Greenway). Among the distinguished guests at the unveiling and dedication ceremony was the Honorable Hugo Margin, ambassador from Mexico. It was possibly the ambassador who alerted Mexican President Gustavo Díaz Ordaz that Americans were paying singular homage to a man who belonged as much to Sonora and Mexico as he did to Arizona and the United States.

Soon after, President Díaz Ordaz charged his Secretary of Public Education, Agustin Yáñez, with the task of locating and positively identifying Father Kino's mortal remains, a job which the secretary assigned on June 30 to Professor Wigberto Jiménez Moreno, head of the Department of Historical Research of Mexico's National Institute of Anthropology and History.

Beginning in August 1965, a half year after the statue's dedication, an international team of investigators headed by Jiménez Moreno arrived in Magdalena, where it was known Father Kino had died in 1711, to begin the search on the ground. It was a hunt that had gone on sporadically at least since 1922 when Bishop Juan Navarette tried without success to locate the grave site.

In addition to Jiménez Moreno, the principal investigators were Jorge Olvera H., an art and architecture historian with a background in archaeology; Arturo Romano P., physical anthropologist; Jorge Angula, archaeologist; Sonoran historians Fernando Pesqueira and Father Cruz Acuña; cartographer Conrado Gallegos; chemist Gabriel Sánchez de la Vega; and Americans William W. Wasley, archaeologist, and Father Kieran R. McCarty, O.F.M., historian.

As work proceeded, it became known from documentary and published sources that Father Kino had died at the age of sixty-five on the night of March 15, 1711, and had been buried on the Gospel side of the altar between the second and third ashlars (foundation stones) in the new chapel he had just dedicated to San Francisco Xavier. It was also learned that the year after Kino's death two other Jesuits were exhumed from their original burial places in Tubutama and their bones, in a jumble, were reburied on the Epistle and Gospel sides of the church. In 1739, Spaniard Salvador de Noriega was buried at the entrance to the chapel. and in 1837, José Gabriel Vega was buried beneath the nave. In 1828, Father José Pérez Llera had put a stone buttress next to part of the slumping east wall of the chapel.

As work in archives and libraries proceeded, so did work in the field. Members of the team looked carefully at the construction materials and techniques used at the ruins of Remedios, a church known to have been built by Father Kino. So did they examine the adobe walls and stone foundations at Cocospera and carry out excavations in Magdalena in places where earlier excavations had occurred, and where their own sense of the unfolding evidence took them.

Finally, it was Jorge Olvera and his expert reading of three nineteenth-century depictions of Magdalena  -  those by John Russell Bartlett (1852), John Ross Browne (1864), and Alphonse Pinart (1879) - that enabled the excavators to zero in on the most likely location of Father Kino's chapel. These drawings indicated the location of Father Agustín Campos's 1705 church in relation to the 1832 church of Father Pérez Llera (the one presently in use), and to Father Kino's chapel. The location of the latter proved to be in an area immediately next to the city hall.

On May 19, 1966, Father Kino's bones were found. He lay undisturbed on the Gospel side of the altar between the second and third ashlars precisely as he had been buried some 255 years earlier. Near him were the secondary burials of the two Tubutama Jesuits, and in the nave of the chapel and just beyond its entrance were the primary burials of 1739 and 1837. Father Pérez Llera's buttress was against the outside of the east wall. Examination of the skeleton, moreover, revealed a European male who was at least sixty years old, showed signs of arthritis (Kino had trouble writing and riding in his later years), and who, unmentioned in the documents, had lost two central incisors long before he died (the tooth sockets had grown over). His coffin was gone, but a simple cassock button remained on his breastbone and a small crucifix lay on his collarbone.

The discovery of Father Kino's remains transformed Magdalena. Its name is now officially Magdalena de Kino and the archaeological remains of Father Campos's early eighteenth-century church, was completely redesigned by architect Francisco Artigus and rebuilt in 1970 and 1971 as the beautiful memorial plaza seen there today.

Bernard L. Fontana
"Finding Father Kino"
"The Pimería Alta - Missions and More" 1996

To download the summary of the Finding Father Kino account written by Dr.Bernard L. Fontana in 1996, Click Finding Father Kino Fontana.

Bishop Antonio de los Reyes
Condition of Kino Chapel and Campos Church  1772

The village of Santa Maria Magdalena is located two leagues to the west of San Ignacio and three from the aforementioned town of Santa Ana. The house of the Father Missionary is entirely in ruins. The church is large but dilapidated and only a chapel to San Francisco Xavier has any decent furnishings.

Bishop Antonio de los Reyes
July 6, 1772

Finding Father Kino's Grave - Two Page Summary Flyer

To View and Download "Finding Father Kino's Grave Summary"
Two Page Flyer, click
Summary Page 1
Summary Page 2

The Historic Center of Santa Maria Magdalena, Sonora
Concept Drawing Of Mission Era Buildings Through Time Jorge Olvera

Jorge Olvera Concept Drawing Of Mission Era Buildings Through Time
Buildings Identified From Right to Left.


Kino Chapel of San Francisco Xavier with bell tower and wall buttress (built 1711). Father Kino was buried in the chapel. Shown in the 1879 Alfonso Pinart drawing.

Campos Church with bell tower (built 1705-1706). Shown in the 1864 J. Ross Browne watercolor painting.

Campos Casa Cural or rectory (built 1705-1706). Father Kino died in the casa cural. The front wall extends in an in-line alignment with Campos Church's front wall. Shown in the 1864 J. Ross Browne watercolor painting.

Perez Llera's School of Grammar (built 1833) with its front wall extending in perpendicular alignment to the front wall of the Mission Church. Shown in the 1864 J. Ross Browne watercolor painting.

Mission Church of Santa María Magdalena, now present parish church (built 1832). The church is shown the 1864 J. Ross Browne watercolor painting. The church and Comellas' casa cural (built before 1876) is shown in 1879 Alfonso Pinart drawing.

The distance between the front of the Kino Chapel and the front of Mission Church of Santa María Magdalena is about 46 meters (147 feet). Olvera draws the buildings in their idealized best condition which does not reflect their historically dilapidated state. The remnants of the buildings were excavated and identified by the historical record.   

To Go To Kino Grave Discovery Site History (page1), click
Grave Discovery Site History Page

To Go Kino Grave Discovery Olvera Account (page 3), click
Grave Discovery Olvera Account Page

To Go To Magdalena de Kino - Trails Ends, click
Magdalena de Kino - Trails End Page